2005 Lake Boulevard Shelton, WA 98584

Front enrtyway leading into the main living area.

Flooded with natural light, this space sits just off the main living area.

Primary living area with a fireplace and custom built-ins

Positioned just off the main living area and kitchen, this versatile space works well as a dining room or extra living area and features a freestanding pellet stove.

Galley kitchen with a convenient side entrance from the carport.

All appliances included.

Primary bedroom located downstairs.

Full bath on main level of the home.

Open laundry room located just off of the kitchen

Spacious, nearly one-third acre lot—ideal for gardening, barbecuing, or outdoor play.

Poured slab previously used as a dog kennel

Over 500sqft garage space with loft

Large loft

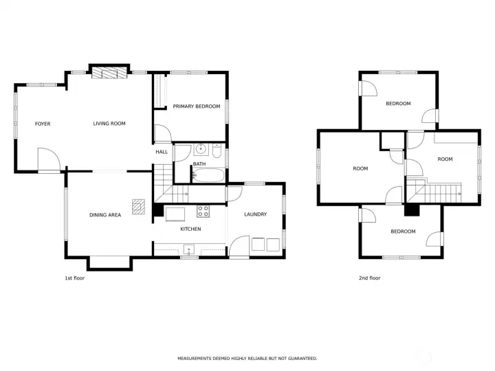
Floor Plan
2005 Lake Boulevard
Shelton, WA 98584
$324,500
Residential
4 Beds
1.00 Baths
1794 SqFt
Active
Opportunity meets character in this 1924 home set on a 0.29-acre corner lot along Lake Blvd, just a short drive from downtown Shelton. With 1,794 sq ft, the home offers a solid structure, vintage details, and a layout ready for your personal touch. Ideal for investors or buyers eager to renovate, this property provides the space and setting to create something special. Enjoy a huge yard with plenty of room for gardening, weekend barbecues, or just playing outside, plus a large detached shop featuring an expansive loft space for storage, hobbies, or workspace. Appliances are included—bring your ideas and make it your own!
Property Features
Community: Shelton
1 1/2 Story
Fenced-Partially
Patio
Shop
Exterior: Wood
Roof: Composition
Parking: Attached Carport
Parking: Driveway
Parking: Off Street
Year Built: 1924
2026 Taxes: $1575.00
Buyer Broker Comp.: 2.5%
Listing #: 2513821
Lot Details
Lot Size: 0.28 acres
Corner Lot
Curbs
Paved
Sidewalk
Appliances That Stay
Dryer
Refrigerator
Stove(s)/Range(s)
Washer
Interior
Ceiling Fan(s)
Fireplace
Water Heater
Cooling: None
Heating: Stove/Free Standing
Electric
Pellet
Wood
Fireplaces: 2
Schools
District: Shelton
Elem: Buyer To Verify
Middle: Oakland Bay Jr HS
High: Shelton High
Call or Email:
Grace Wamwere
What's Near 2005 Lake Boulevard Shelton, WA 98584?

Information is based on data available to the associate, including county records. The information has not been verified by the associate and all information presented should be verified by the buyer. Listings are provided by Northwest Multiple Listing Service as distributed by MLS GRID. The associate represented on this web site is not a multiple listing service but is a member of a local MLS.
DMCA Notice