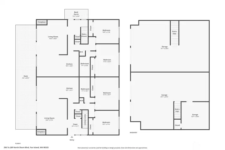
296 North Shore Boulevard Fox Island, WA 98333
296 North Shore Boulevard
Fox Island, WA 98333
$890,000
Multi-Family
0 Beds
0.00 Baths
0 SqFt
Active
Not just one but TWO Fox Island VIEW homes with more than 2200 sf of garage and storage on a usable 1+ acre lot just across the bridge. So many possibilities are at your fingertips - Live in one, pay the mortgage with the other, take advantage of the space to park all the toys and RV, have a multigenerational compound near the water, or get creative and modify it into one. Each side features a great room with big view windows, vaulted ceilings and sliding doors to the newly resurfaced deck to take in the sunrises, the vistas of Honeymoon Bay and all the activity in Hale Passage. They also each include 2 spacious bedrooms (one with a door to the full bath), a stacked washer/dryer in the hall, and a compact open kitchen on the main level. 298 was renovated in 2016 with new cabinets, granite countertops, new flooring, canned lighting, and resurfaced ceilings (no popcorn). It's currently rented through July 2027 at $1950 per month (under market). 296 is refreshed and ready for quick move in. The huge garage/flex spaces below are a blank slate (or a dream come true for the garage lover) including 220 power. A new 4 bedroom septic installed in 2015 and a small 2nd parcel complete this exciting package!
Property Features
Community: Fox Island
Duplex
View: Bay
View: Sound
Cable TV
Deck
High Speed Internet
RV Parking
Shop
Exterior: Wood
Roof: Composition
Year Built: 1976
2026 Taxes: $7845.09
Buyer Broker Comp.: 2.5%
Listing #: 2513509
Lot Details
Lot Size: 1.05 acres
Corner Lot
Paved
No. of Units: 2
Interior
Cooling: None
Heating: Forced Air
Electric
Schools
District: Peninsula
Elem: Voyager Elem
Middle: Kopachuck Mid
High: Gig Harbor High
Call or Email:
Grace Wamwere
What's Near 296 North Shore Boulevard Fox Island, WA 98333?

Information is based on data available to the associate, including county records. The information has not been verified by the associate and all information presented should be verified by the buyer. Listings are provided by Northwest Multiple Listing Service as distributed by MLS GRID. The associate represented on this web site is not a multiple listing service but is a member of a local MLS.
DMCA Notice