
Welcome to Unit E4. Come down the private drive, park in one of your two covered carport spots, or pull into the 2 car tandem garage.

Plenty of space for you to park, plus two covered guest spots right out front.

Enter to a large open living room. Gather round the dining table for a warm meal.

Walk in further to the family space to watch anything you like on the mounted TV, play games, or just relax.

Great space for game nights, guests, or quiet nights at home.

Living space connected but separate from kitchen.

Gather round the gas fireplace in the winter for an extra boost of warmth. AC keeps you cool in the summertime.

Step out onto the deck to catch some outdoor lounge time. Deck also comes with an extra storage closet.

Cook and eat and stay connected through the open wall.

Dine under designer lighting.

Wash up in the newly resurfaced kitchen sink.

Cook in style with all newer stainless steel appliances.

Included in purchase are: refrigerator, microwave, stove/range, washer, dryer, grill and canopy, and mounted TV

Cook for many or just yourself, there's plenty of counter spae in this kitchen!

Eat a snack or dine in teh breakfast nook in the mornings. Extra space to add in a wine rack, more cabinets, a display, or anything you like. Connects via sliding door to the back patio.

Guest bath, hall bath, call it what you'd like. A convenient half bath on the main floor. New vanity, flooring, and lighting.

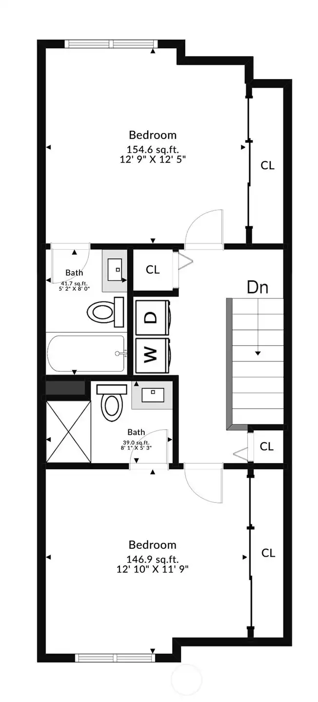
Step upstairs to the primary bedroom, complete with vaulted ceilings. Let in the natural light, and enjoy the designer lighting above.

Primary also comes equipped with a full bath.

Don't forget the primary closets! Oversized for extra storage room.

Step into the primary ensuite, take a bath, and enjoy the new vanity, floors, and lighting.

Ensuite bath connected to primary for maximum convenience and privacy.

hop across the hall to the second bedroom. Spacious!

And the second bedroom also comes with it's own ensuite!

Don't forget the oversized closets here, too. Two ensuite bedrooms in one home, each with big closets!

3/4 ensuite bath also comes with a new vanity, new floors, and new lighting. Plus newer tiling in the shower.

Take a walk around back to see a glimpse of the private patio.

Home comes with great patio space, and it's own grill and canopy. Easily step from the kitchen to the grill through the sliding glass door.

Park in the oversized two car tandem garage. Or, park outside in one of your covered spots, and finish this space to use as a rec room, exercise room, shop, or office, and still have room for storage.

Main floor with kitchen, living room, half bath, gas fireplace, breakfast nook, and dining area. Step out onto the patio or deck.

Upper level with two ensuite bedrooms, each with large closets. Wash and dry clothes in the laundry area, and there's still room for linens in the upstairs linen closet.

Basement/garage space is ripe with opportunity. Convert it to another usable room, keep it as a garage for cars, or use it as a large storage unit.

Aerial view

Front view of home, just across the privte drive from your two covered assigned parking spots, and two convenient sared guest spots.