1701 E Burr Avenue #19 Moses Lake, WA 98837
1701 E Burr Avenue #19
Moses Lake, WA 98837
$240,000
Manufactured Home
3 Beds
1.75 Baths
1566 SqFt
Active
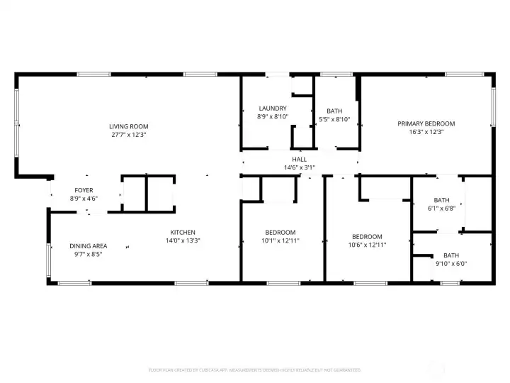
Beautifully maintained 2018 Valley Quality manufactured home located in the desirable age 55+ community of The Lakes. This move-in ready home offers exceptional outdoor living with a welcoming front porch, fully landscaped yard, concrete walkways, and underground sprinklers. Enjoy added privacy in the fully fenced backyard, along with rain gutters and a spacious 640 sq ft insulated detached garage—perfect for parking, storage, or a workshop. Inside, the thoughtfully designed floor plan features vaulted ceilings and an open layout that creates a bright, airy feel throughout. Neutral colors provide a clean, modern backdrop ready for your personal touch. The large kitchen is a standout, offering abundant cabinet storage with roll-outs, a generous walk-in pantry, plus an additional pantry for extra convenience. The home includes three bedrooms and 1.75 bathrooms, including a spacious primary suite with double vanity. All appliances are included—washer and dryer too—making this an easy, turnkey opportunity.
Property Features
Community: Wheeler
Manuf-Double Wide
View: Territorial
Unit Can Stay: Yes
Age Restriction: Yes
Exterior: Wood Products
Roof: Composition
Parking: Individual Garage
Year Built: 2018
2026 Taxes: $2278.00
Buyer Broker Comp.: 2.5%
Listing #: 2510377
Lot Details
Paved
Units in Park: 67
Appliances That Stay
Dishwasher
Double Oven
Dryer
Microwave
Refrigerator
Stove(s)/Range(s)
Washer
Interior
Bath Off Primary
Double Pane Windows
Landscaped
Patio/Porch/Deck
Vaulted Ceilings
Walk-in Pantry
Cooling: Forced Air, Heat Pump
Heating: Heat Pump, Forced Air
Electric
Schools
District: Moses Lake
Elem: Buyer To Verify
Middle: Buyer To Verify
High: Buyer To Verify
Call or Email:
Grace Wamwere
What's Near 1701 E Burr Avenue #19 Moses Lake, WA 98837?

Information is based on data available to the associate, including county records. The information has not been verified by the associate and all information presented should be verified by the buyer. Listings are provided by Northwest Multiple Listing Service as distributed by MLS GRID. The associate represented on this web site is not a multiple listing service but is a member of a local MLS.
DMCA Notice