
2,840 sqft w/ 5 bedroom 2.5baths. virtual staged front lawn

Virtual staged front lawn-yard been cleaned and seed recently

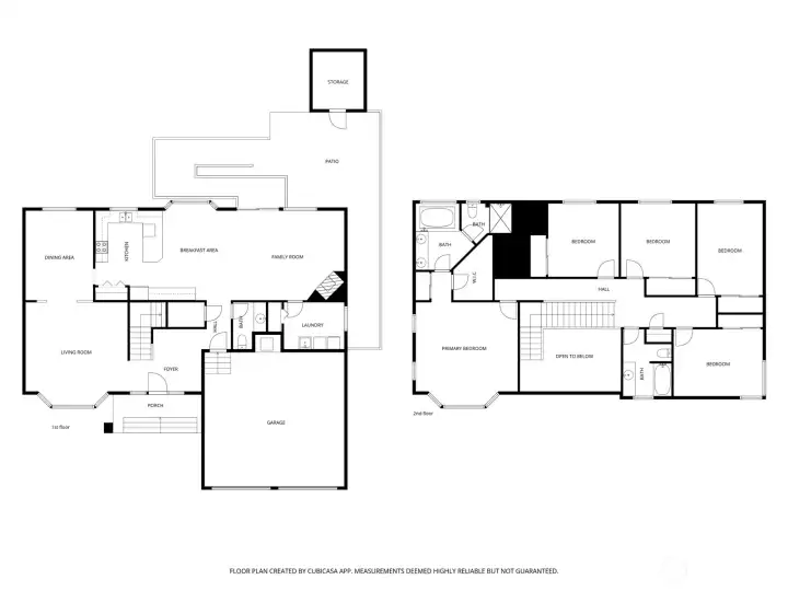
31835 Floor plan

Covered front patio to double entry door!!

Vaulted ceiling entryway. installed lift-chair. virtual stage with console and wall art area

Grand Front entryway - extensive Hardwood flooring from entry to kitchen and nook area

Front entry to Formal living and Formal dining area

Formal Living room view

Formal dining room to Formal living room view

Formal dining room - virtual staged

Formal dining room -virtual staged

Eating nook to family room view - virtually staged

Eating nook to kitchen area - virtually staged

Family room to kitchen view

Kitchen and family room area view

Kitchen to family room view

virtual staged - kitchen to family room view

Spacious kitchen with marble countertops and eatingbar and bill desk

Spacious kitchen has eating bar

Kitchen has eating bar - virtually staged

Bill desk and nook - virtually staged

Glamming Hardwood floors at nook and kitchen. Family room view - large slider to backyard and there is ramp help to in/out

Family room view - virtually staged

Primary suite view

Huge Primary suite view

5pcs primary suite bath

Bedroom 3

Bedroom 3

Bedroom 3 - virtually staged

Hallway bath

Powder bath - virtually staged

Spacious Laundry room has sink

Ramp installed and connect to the family room slider

Storage shed in backyard stays

Spacious backyard been seeded recently

Helpful accessibility of the ramp and storage shed in the backyard

Front lawn - virtually staged

Peasley Ridge community