415 Lakeview Rd #K35 Lynnwood, WA 98087
415 Lakeview Rd #K35
Lynnwood, WA 98087
$275,000
Manufactured Home
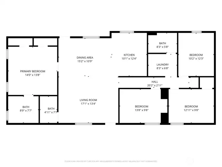
4 Beds
2.75 Baths
1596 SqFt
Active
Better than new! This home was completely remodeled last year. Starting with a new roof all the way down to the crawl space! Brand-new stainless-steel appliances, top of the line washer and dryer, brand-new furnace and water heater as well! turnkey and ready to go. Rare 4 bedroom in an all-ages park in a convenient location. Only minutes to I-5 and I-405 for the commuters dream. 3 parking spaces as well! Don't miss out!
Property Features
Community: Martha Lake
Manuf-Double Wide
View: Territorial
Exterior: Wood Products
Roof: Composition
Parking: Carport
Year Built: 1989
2026 Taxes: $0.00
Buyer Broker Comp.: 3%
Listing #: 2508814
Lot Details
Lot Size: 14.12 acres
Paved
Appliances That Stay
Dishwasher
Disposal
Dryer
Microwave
Refrigerator
Stove(s)/Range(s)
Washer
Interior
Bath Off Primary
Double Pane Windows
Patio/Porch/Deck
Walk-In Closet
Cooling: None
Heating: Forced Air
Electric
Schools
District: Edmonds
Elem: Buyer To Verify
Middle: Buyer To Verify
High: Buyer To Verify
Call or Email:
Grace Wamwere
What's Near 415 Lakeview Rd #K35 Lynnwood, WA 98087?

Information is based on data available to the associate, including county records. The information has not been verified by the associate and all information presented should be verified by the buyer. Listings are provided by Northwest Multiple Listing Service as distributed by MLS GRID. The associate represented on this web site is not a multiple listing service but is a member of a local MLS.
DMCA Notice