2369 Fairview Avenue E #6 Seattle, WA 98102
2369 Fairview Avenue E #6
Seattle, WA 98102
$4,850,000
Residential
3 Beds
3.25 Baths
2866 SqFt
Active
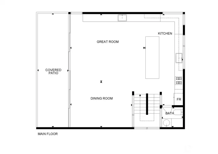
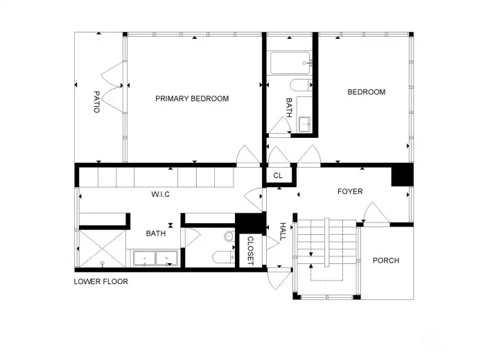
Fairview Landing #6 // Designed by Vandeventer + Carlander Architects, this modern floating home continues Seattle’s rich tradition of life on Lake Union, offering coveted southern exposure and sweeping views of Downtown, Queen Anne Hill, Gas Works Park, the Olympics and Space Needle. Thoughtfully designed, the floorplan inverts a traditional layout by placing public living spaces on the upper level to maximize light, views, and entertaining. Expansive glazing and large sliding doors open to multiple decks, including a rooftop terrace accessed by a sculptural circular stair, creating seamless indoor-outdoor flow. Private spaces are located on the entry level, while a rare underwater lower level with true porthole windows offers an immersive connection to the lake. The home’s carved massing, recessed decks, and material shifts create architectural depth and integrity. Sustainable features include hydronic in-floor heating via energy-efficient heat pump, heat-exchange ventilation, solar power, and strategically placed glazing for passive performance. Exterior fiber cement rainscreen panels and aluminum cladding pair with Alaskan yellow cedar-framed windows, while interiors feature mahogany, zebrawood, bamboo flooring, and warm wood accents, all balancing modern design with livability. Located within the sough after Fairview Landing community with dedicated parking and moorage with remote boat lift, this is refined waterfront living in the heart of the city.
Watch Virtual Tour #1Property Features
Community: Eastlake
Floating Home/On-Water Res
View:
View: City
View: Lake
View: Territorial
Waterfront: Lake
Waterfront: No Bank
Waterfront: Low Bank
Cable TV
Deck
Dock
Gas Available
Gated Entry
High Speed Internet
Moorage
Patio
Rooftop Deck
Bus Line Nearby: Yes
Exterior: Cement Planked
Roof: Flat
Roof: Torch Down
Parking: Off Street
Year Built: 2006
HOA Dues: $250
2025 Taxes: $37705.00
Buyer Broker Comp.: 2.5%
Listing #: 2508546
Lot Details
Lot Size: 0.00 acres
Adjacent to Public Land
Paved
Appliances That Stay
Dishwasher
Disposal
Dryer
Microwave
Refrigerator
Stove(s)/Range(s)
Washer
Interior
Bath Off Primary
Dining Room
Fireplace
High Tech Cabling
Jetted Tub
Security System
Walk-In Closet(s)
Water Heater
Wet Bar
Dbl Pane/Storm Window
Cooling: High Efficiency (Unspecified), Heat Pump
Heating: High Efficiency (Unspecified), Heat Pump, Radiant
Electric
Natural Gas
Fireplaces: 1
Community Features
CCRs
Gated
Open Houses
Apr 23: 11:00 AM - 1:00 PM
Apr 25: 11:00 AM - 2:00 PM
Apr 26: 11:00 AM - 2:00 PM
Schools
District: Seattle
Elem: Buyer To Verify
Middle: Buyer To Verify
High: Buyer To Verify
Call or Email:
Grace Wamwere
What's Near 2369 Fairview Avenue E #6 Seattle, WA 98102?

Information is based on data available to the associate, including county records. The information has not been verified by the associate and all information presented should be verified by the buyer. Listings are provided by Northwest Multiple Listing Service as distributed by MLS GRID. The associate represented on this web site is not a multiple listing service but is a member of a local MLS.
DMCA Notice