1750 152nd Avenue NE #W307 Bellevue, WA 98007

Security entrance, elevator, garage parking, storage, Restaurant, hobby rooms, salt water pool, hot tub, gym, guest suite, gardening areas and so much more. 55+ Co-Op.

55+ Active community

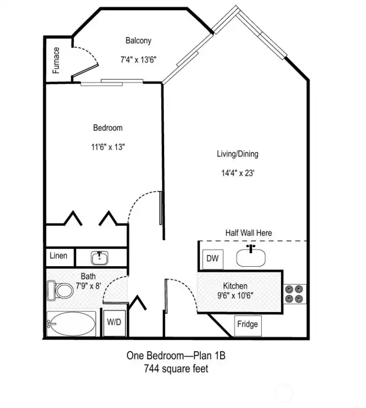
Floor plan

Spacious updated kitchen with breakfast bar

newer appliances and nice finishes

Light and bright livingroom with new lighting and deck access.

Bedroom with deck access

closet organizers

large walk in closet with safety bar

Large balcony with access from Livingroom and bedroom

Garage Parking #6 and storage closet #6

Lots of guest parking

Suite for guest to stay in.

small gathering suite

gathering area

Ping pong and pool room

Dining Room

BBq area

Patio

Private dining room

game/meeting room/crafts

game room, Library

Salt Water pool

Gym

Building lobby
1750 152nd Avenue NE #W307
Bellevue, WA 98007
$285,000
Condominium
1 Beds
1.00 Baths
744 SqFt
Active
Welcome to Silver Glen! This top floor unit offers an updated kitchen, Fresh paint and new carpet, abundance of storage & pull-outs. LR/DR area, & large slider to deck overlooking lush grounds. Spacious bedrrom with access to deck overlooking peaceful treed area. Large bathroom w/walk-in shower, washer/dryer. Many imenities: indoor saline pool, jacuzzi, gym, dining hall, Restaurant, party rm, library, game rms, salon, guest apt, walking paths, woodworking shop. Picturesque 4+ acres. Silver Glen is a non-profit, 55+ cooperative housing corporation. Owners are members of the corporation and collectively own the building/land & work together to maintain their living spaces to create a vibrant community. Onsite management and maintenance! Update all figures below before listing.
Property Features
Community: East Bellevue
Condo (1 Level)
Floor: 3
View: Territorial
Age Restriction: Yes
Bus Line Nearby: Yes
Exterior: Brick
Exterior: Wood Products
Roof: Composition
Parking: Common Garage
Parking: Off Street
Parking: Uncovered
Year Built: 1995
HOA Dues: $1095
2026 Taxes: $1560.00
Buyer Broker Comp.: 2%
Listing #: 2508536
Lot Details
Cul-De-Sac
Curbs
Dead End Street
Paved
Sidewalk
Appliances That Stay
Dishwasher
Disposal
Dryer
Microwave
Refrigerator
Stove(s)/Range(s)
Washer
Interior
Cooking-Electric
Dryer-Electric
Washer
Water Heater
Insulated Windows
Top Floor
Balcony/Deck/Patio
Insulated Windows
Top Floor
Cooling: None
Heating: Forced Air
Electric
Common Features
Age Restriction
Cable TV
Elevator
Exercise Room
Fire Sprinklers
Game/Rec Rm
Garden Space
Hot Tub
Lobby Entrance
Pool-Indoor
Trails
Clubhouse
Schools
District: Bellevue
Call or Email:
Grace Wamwere
What's Near 1750 152nd Avenue NE #W307 Bellevue, WA 98007?

Information is based on data available to the associate, including county records. The information has not been verified by the associate and all information presented should be verified by the buyer. Listings are provided by Northwest Multiple Listing Service as distributed by MLS GRID. The associate represented on this web site is not a multiple listing service but is a member of a local MLS.
DMCA Notice