1706 111th Avenue NE Bellevue, WA 98004

Welcome home!

Stunning 2026 Thomas James Home in the heart of Bellevue.

Upon entry, you are welcomed with a spacious formal dining room that flows to the kitchen via a skullery.

This room across the hall makes for a perfect home office, main level kids playroom or gym. So many options!

Main level powder room.

Open concept living at its finest!

Warm, yet bright living room.

Oversized island with room for 6!

Need the perfect space for inlaws when they visit? This main level beroom with ensuite is the perfect space.

Head upstairs where you will enter an entertaining loft.

Unlimited fun in this lower level bonus room.

Lower level covered outdoor space to enjoy year round.

This lower level second kitchen/bar is the perfect set up for entertainment.

Perfect space for Friday night movie marathons!

Lower level bedroom- private and spacious.

Just to see what a $50k landscaping budget will do for this spacious backyard!
1706 111th Avenue NE
Bellevue, WA 98004
$4,895,000
Residential
6 Beds
5.00 Baths
5638 SqFt
Active
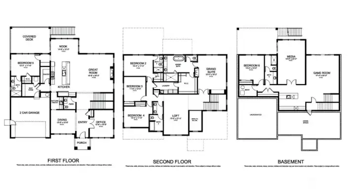
Welcome home to exceptional new construction in Hidden Hills by Thomas James Homes. Set on a generous and distinctive homesite, this thoughtfully designed residence offers three spacious levels of modern living and custom designer touches throughout. Main level features formal and casual living areas, a private office, guest en-suite, and a covered heated deck for year-round entertaining and outdoor living. Upper level offers a relaxing primary retreat, three additional bedrooms, and an open vaulted rec space. The walk-out lower level adds flexibility with a guest suite, media room, rec room with kitchenette, exceptional storage including a walk-in crawlspace, and two outdoor living spaces. Walk to nearby trails, parks, and dining, and enjoy being minutes from Bellevue Square, top schools, and the Eastside tech corridor.
Watch Virtual Tour #1Property Features
Community: West Bellevue
2 Stories w/Bsmnt
View: Territorial
Deck
Electric Car Charging
Fenced-Partially
Gas Available
Patio
New Construction: Yes
Exterior: Cement/Concrete
Exterior: Stone
Exterior: Wood
Exterior: Wood Products
Roof: Composition
Parking: Attached Garage
Year Built: 2026
2026 Taxes: $0.00
Buyer Broker Comp.: 2.5%
Listing #: 2508457
Lot Details
Lot Size: 0.35 acres
Open Space
Paved
Appliances That Stay
Dishwasher
Disposal
Microwave
Refrigerator
Stove(s)/Range(s)
Watch Virtual Tour #2Interior
Second Kitchen
Bath Off Primary
Dining Room
Fireplace
Fireplace (Primary Bedroom)
French Doors
High Tech Cabling
Pantry
Vaulted Ceiling(s)
Walk-In Closet(s)
Wet Bar
Dbl Pane/Storm Window
Cooling: 90%+ High Efficiency, Heat Pump
Heating: 90%+ High Efficiency, Heat Pump
Electric
Natural Gas
Solar (Unspecified)
Fireplaces: 2
Open Houses
Apr 18: 11:30 PM - 1:30 PM
Apr 19: 3:00 PM - 5:00 PM
Schools
District: Bellevue
Elem: Clyde Hill Elem
Middle: Chinook Mid
High: Bellevue High
Call or Email:
Grace Wamwere
What's Near 1706 111th Avenue NE Bellevue, WA 98004?

Information is based on data available to the associate, including county records. The information has not been verified by the associate and all information presented should be verified by the buyer. Listings are provided by Northwest Multiple Listing Service as distributed by MLS GRID. The associate represented on this web site is not a multiple listing service but is a member of a local MLS.
DMCA Notice