3193 Woods Road E Port Orchard, WA 98366
3193 Woods Road E
Port Orchard, WA 98366
$649,900
Residential
3 Beds
3.00 Baths
2260 SqFt
Active
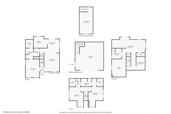
Well-located in a desirable area of Port Orchard, this 1.42-acre property offers space, versatility, and convenient access to ferry commuting. Featuring 3 bedrooms, 3 bathrooms, plus an office, a finished basement, and an additional 576 sq ft bonus room above the garage, there’s room to live, work, and grow. The main level includes a bright living and dining area, an updated kitchen with brand-new appliances, and a main-floor primary suite. Upstairs, you’ll find two spacious bedrooms connected by a Jack-and-Jill bath. The lower level offers a private entrance, family room, office, and full bath—ideal for guests or multi-generational living. Enjoy the large deck overlooking the backyard, a spacious fenced yard perfect for activities or gardening, and an additional storage shed for all your extras. Fresh interior and exterior paint, a generous driveway with ample parking, and great curb appeal complete the package. The bonus space above the garage makes an excellent home office, studio, or guest retreat—all in a sought-after location with an easy Seattle commute.
Watch Virtual Tour #1Property Features
Community: Manchester
2 Stories w/Bsmnt
Deck
Fenced-Fully
RV Parking
Exterior: Cement Planked
Roof: Composition
Parking: Detached Garage
Parking: RV Parking
Year Built: 2006
2025 Taxes: $4581.00
Buyer Broker Comp.: 2.5%
Listing #: 2508182
Lot Details
Lot Size: 1.42 acres
Paved
Appliances That Stay
Dishwasher
Dryer
Microwave
Refrigerator
Stove(s)/Range(s)
Washer
Watch Virtual Tour #2Interior
Bath Off Primary
Walk-In Closet(s)
Dbl Pane/Storm Window
Cooling: None
Heating: Forced Air
Electric
Schools
District: South Kitsap
Call or Email:
Grace Wamwere
What's Near 3193 Woods Road E Port Orchard, WA 98366?

Information is based on data available to the associate, including county records. The information has not been verified by the associate and all information presented should be verified by the buyer. Listings are provided by Northwest Multiple Listing Service as distributed by MLS GRID. The associate represented on this web site is not a multiple listing service but is a member of a local MLS.
DMCA Notice