17804 Ashe Court Granite Falls, WA 98252

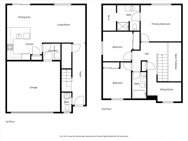
Entry with half bath to left

living room to dining area

Brand new kitchen!

entry from living room side of hallway

half bath on main

Primary

Primary bath

Primary closet

bedroom 2

bedroom 3

2nd floor bath

flex area

Mud room off garage and kitchen

Garage

Back yard with enhanced grass (recently hydro seededP)

Current state after recent hydro seeding (give it a few weeks :)
17804 Ashe Court
Granite Falls, WA 98252
$585,000
Residential
3 Beds
2.25 Baths
1590 SqFt
Active
Located off the only cul-de-sac in Suncrest Farms, this thoughtfully updated home truly stands out. Offering 3 bedrooms, 2.25 baths, just under 1,600sqft and a versatile upstairs flex space—perfect for a play, office, or cozy reading area.You’ll notice the difference right away with new flooring throughout, fresh interior paint, updated trim, and all new doors. The kitchen has been fully refreshed with soft-close cabinetry, quartz countertops and backsplash, a large sink, and brand new appliances. Don't miss the updated mud room with additional storage. Outside, enjoy a fully fenced backyard with fresh hydroseed and views of Mt. Pilchuck from the patio—your own little peaceful escape. Conveniently located: town, hiking, trails, and highway 92. Pre inspected, carefully updated, this home is waiting for you!
Property Features
Community: Granite Falls
2 Story
View:
View: Territorial
Cable TV
Fenced-Fully
Gas Available
Patio
Exterior: Cement Planked
Roof: Composition
Parking: Driveway
Parking: Attached Garage
Parking: Off Street
Year Built: 2018
HOA Dues: $605
2026 Taxes: $3921.72
Buyer Broker Comp.: 2.5%
Listing #: 2507927
Lot Details
Lot Size: 0.12 acres
Cul-De-Sac
Curbs
Dead End Street
Paved
Sidewalk
Appliances That Stay
Dishwasher
Dryer
Microwave
Refrigerator
Stove(s)/Range(s)
Washer
Interior
Bath Off Primary
Walk-In Closet(s)
Water Heater
Dbl Pane/Storm Window
Cooling: None
Heating: Forced Air
Electric
Natural Gas
Community Features
CCRs
Trail(s)
Open Houses
Apr 18: 10:00 AM - 12:00 PM
Apr 18: 1:00 PM - 3:00 PM
Apr 19: 12:00 PM - 2:00 PM
Schools
District: Granite Falls
Elem: Monte Cristo Elem
Middle: Granite Falls Mid
High: Granite Falls High
Call or Email:
Grace Wamwere
What's Near 17804 Ashe Court Granite Falls, WA 98252?

Information is based on data available to the associate, including county records. The information has not been verified by the associate and all information presented should be verified by the buyer. Listings are provided by Northwest Multiple Listing Service as distributed by MLS GRID. The associate represented on this web site is not a multiple listing service but is a member of a local MLS.
DMCA Notice