
Welcome home!

Spacious entry with a dedicated coat closet, powder room, and office/den right off the entry.

Spacious and modern kitchen features an island with seating.

The main level is filled with light and open-concept living.

The kitchen features stainless steel appliances and a gas range.

Just off the kitchen is a dedicated dining space with a sliding door to the covered patio.

The covered patio just off the kitchen provides year-round comfort.

The main level features a convenient half bath just off the entry.

The main level living room features a fireplace and views of the forest behind the home.

Heading upstairs from the main floor living room...

The upper level welcomes you with a loft featuring a mirror walk and currently set as an office space. There is private office/den on the main floor as well.

Primary bedroom is bright and spacious.

The primary bedroom comfortably fits a King size bed.

Imagine waking up to these forest views from your bedroom window!

Primary bathroom is full of natural light and features a vanity with double sinks. Walk-in closet is located next to the primary bathroom.

Primary bathroom features a spacious walk-in shower with natural light (no tub).

Primary bedroom features an electric fireplace.

Second bedroom located on the upper level is spacious and bright.

All bedrooms on the upper level feature walk-in closets!

A full bathroom on the upper level is shared by the second, third, and fourth bedrooms.

Third bedroom on the upper level.

Laundry room is conveniently located on the upper level near the bedrooms.

Fourth bedroom on the upper level (this one is closest to the primary bedroom).

Heading down to the lower level...

A spacious rec room with access to the patio.

Fifth bedroom on the lower level offers privacy.

Bathroom dedicated for the lower level bedroom and rec room.

The ground-level patio features a custom-built covered area with skylights and lighting for year-round enjoyment.

The covered patio is spacious and provides year-round enjoyment.

Huge one-acre lot provides privacy and tranquility.

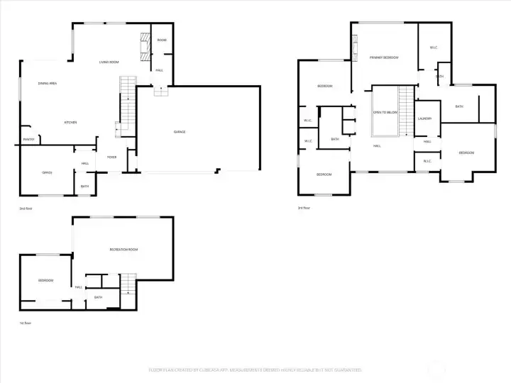
Whole house floor plan

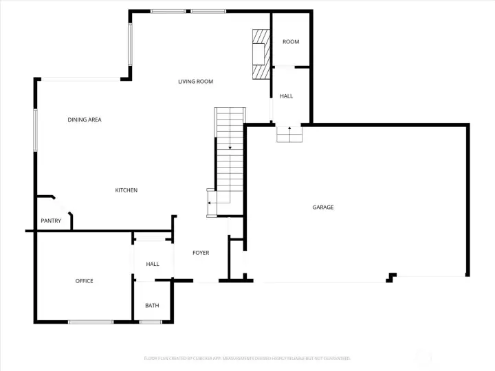
Main level floor plan

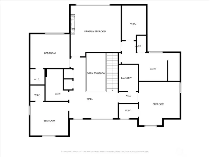
Upper level floor plan

Lower level floor plan