31415 NE 74th Avenue La Center, WA 98629
31415 NE 74th Avenue
La Center, WA 98629
$1,399,000
Residential
4 Beds
2.50 Baths
3992 SqFt
Active
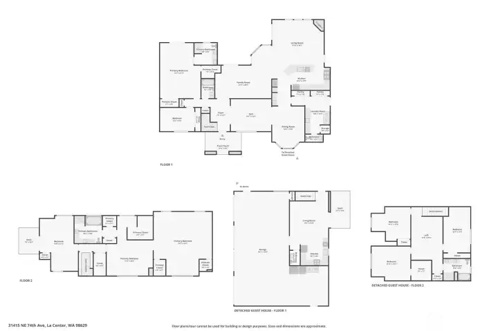
Is there a 4-bed single family home in La Center with acreage and an ADU for multigenerational living or rental potential? This gated 5.5 acre estate plus additional .65 acre tax lot includes a 4 bedroom main home and a 3 bedroom ADU with private entrance, expansive garage space, RV parking, and a well appointed kitchen built for everyday living and entertaining. 4-bed single family home in La Center situated on over 6 acres across two tax lots, offering privacy, functionality, and long term versatility. The 2,672 sqft main residence features two primary suites, including one on the main level and an oversized upper level ensuite with generous closet space. The kitchen is designed for efficiency and style with double ovens, gas range, pot filler, island workspace, butlers pantry, granite counters, and durable tile flooring. The 1,320 sqft ADU spans two levels and includes 3 bedrooms plus loft and 1.5 baths with a private entrance, ideal for extended living arrangements or additional household space. Exterior highlights include gated entry, fenced, covered patio, two septic systems, water filtration system, water softener, and a 4 car detached garage with RV parking. This La Center property offers acreage living with room to grow, gather, and create long term value. Schedule your tour today.
Watch Virtual Tour #1Property Features
Community: La Center
2 Story
Barn
Fenced-Partially
Gated Entry
Patio
Propane
RV Parking
Exterior: Cement/Concrete
Exterior: Stone
Roof: Composition
Parking: Driveway
Parking: Detached Garage
Parking: RV Parking
Year Built: 1980
2026 Taxes: $10094.00
Listing #: 2507159
Lot Details
Lot Size: 6.15 acres
Appliances That Stay
Dishwasher
Disposal
Double Oven
Microwave
Stove(s)/Range(s)
Trash Compactor
Watch Virtual Tour #2Interior
Second Kitchen
Second Primary Bedroom
Bath Off Primary
Ceiling Fan(s)
Dining Room
Fireplace
French Doors
Jetted Tub
Loft
Vaulted Ceiling(s)
Walk-In Closet(s)
Water Heater
Cooling: Heat Pump
Heating: Heat Pump
Propane
Fireplaces: 1
Schools
District: La Center
Elem: Lacenter Elem
Middle: Lacenter Mid
High: La Center High
Call or Email:
Grace Wamwere
What's Near 31415 NE 74th Avenue La Center, WA 98629?

Information is based on data available to the associate, including county records. The information has not been verified by the associate and all information presented should be verified by the buyer. Listings are provided by Northwest Multiple Listing Service as distributed by MLS GRID. The associate represented on this web site is not a multiple listing service but is a member of a local MLS.
DMCA Notice