14689 Brownsville Hwy Road Poulsbo, WA 98370
14689 Brownsville Hwy Road
Poulsbo, WA 98370
$120,000
Land
0 Beds
0.00 Baths
0 SqFt
Active
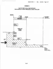
Shy 1/2 Acre lot in Keyport with water at lot, power at road, enter by private drive off Brownsville Hwy, large cedar trees on lot, backs to a lovely brick home on Tagholm (MLS# 2363310) . Super close to everything including Keyport base, Bangor Sub Base, Highways and Freeways! Lovely territorial views, private setting.
Property Features
Community: Keyport
Res-Less thn 1 Ac
View: Territorial
Corners Flagged
Evergreens
Lightly Treed
Pool: Above Ground
2026 Taxes: $377.00
Buyer Broker Comp.: 2.5%
Listing #: 2506426
Lot Details
Lot Size: 0.43 acres
Lot Dimensions: IRR
Paved
Secluded
Topography: Level
Topography: Rolling
Topography: Sloped
Road Sides: south east
Road: County Maintained
Road: Paved
Utilities
Electricity: In Street
Water: Available
Water: On Property
Gas: In Street
Sewer: Not Available
Schools
District: North Kitsap #400
Call or Email:
Grace Wamwere
What's Near 14689 Brownsville Hwy Road Poulsbo, WA 98370?

Information is based on data available to the associate, including county records. The information has not been verified by the associate and all information presented should be verified by the buyer. Listings are provided by Northwest Multiple Listing Service as distributed by MLS GRID. The associate represented on this web site is not a multiple listing service but is a member of a local MLS.
DMCA Notice