1106 Wood Avenue Kelso, WA 98626
1106 Wood Avenue
Kelso, WA 98626
$250,000
Land
0 Beds
0.00 Baths
0 SqFt
Active
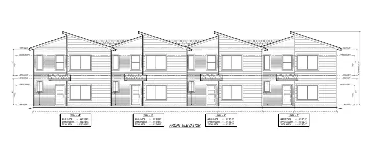
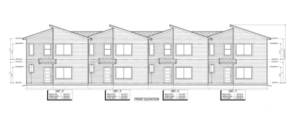
Investor special! Approved building plans and permits for a 4plex included! Buy this property today and start building right away! This lot is approximately 10k SQFT, & located in close proximity to Barnes Elementary and Huntington Middle School. Great opportunity for new and seasoned investors! Build for the market or for your rental portfolio! Buyer to verify all info with the local jurisdiction to their satisfaction. Call today for more information.
Property Features
Community: North Kelso
Multi-Family
Pool: Above Ground
Taxes: $0.00
Buyer Broker Comp.: Call LA
Listing #: 2505999
Lot Details
Lot Size: 0.25 acres
Road: County Maintained
Utilities
Electricity: In Street
Water: In Street
Gas: Not Available
Sewer: In Street
Call or Email:
Grace Wamwere
What's Near 1106 Wood Avenue Kelso, WA 98626?

Information is based on data available to the associate, including county records. The information has not been verified by the associate and all information presented should be verified by the buyer. Listings are provided by Northwest Multiple Listing Service as distributed by MLS GRID. The associate represented on this web site is not a multiple listing service but is a member of a local MLS.
DMCA Notice