14142 97th Avenue NE Kirkland, WA 98034
14142 97th Avenue NE
Kirkland, WA 98034
$1,175,000
Residential
3 Beds
2.00 Baths
2200 SqFt
Active
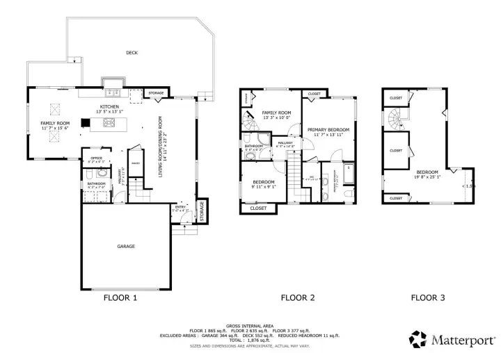
Unique multi-level Finn Hill home on a ~ 13,000 sq ft lot with a spiral staircase to a permitted 3rd-story retreat - potential 4th bedroom, office, or studio. Property may be ADU eligible, subject to local requirements. Buyer to verify and conduct their own due diligence. Privacy and flexible living can be found in the terraced outdoor spaces and Daylight basement, currently utilized as a fitness area and office space. Thoughtfully designed across multiple levels to take full advantage of its terraced setting, this property offers a rare combination of privacy, natural light, and flexible living spaces on a generous nearly 13,000 sq ft lot. A spiral staircase leads to a fully permitted third-story space, creating a unique opportunity for a potential 4th bedroom, home office, creative studio - offering elevated separation from the main living areas and quiet escape within the home. Expansive windows fill the home with natural light, while the multi-level layout creates distinct yet connected living spaces. The daylight basement room adds versatility. Enjoy low-maintenance outdoor living with tiered decks and usable outdoor areas designed for relaxing or entertaining. Tucked in the Finn Hill neighborhood of Kirkland, you’re just moments from parks, shopping, dining, and commuter routes using I-405 to Bellevue & Redmond, Bothell Way to Seattle and major employers including Meta, Microsoft and Google. Located within the award-winning Lake Washington School District.
Watch Virtual Tour #1Property Features
Community: Finn Hill
Multi Level
View: Territorial
Cable TV
Deck
Fenced-Fully
High Speed Internet
Exterior: Wood
Roof: Composition
Parking: Attached Garage
Year Built: 1986
2026 Taxes: $12727.00
Buyer Broker Comp.: 2.5%
Listing #: 2504865
Lot Details
Lot Size: 0.30 acres
Curbs
Paved
Sidewalk
Appliances That Stay
Dishwasher
Dryer
Refrigerator
Stove(s)/Range(s)
Watch Virtual Tour #2Interior
Bath Off Primary
Ceiling Fan(s)
Vaulted Ceiling(s)
Walk-In Closet(s)
Dbl Pane/Storm Window
Cooling: None
Heating: Forced Air
Electric
Natural Gas
Schools
District: Lake Washington
Elem: Buyer To Verify
Middle: Buyer To Verify
High: Buyer To Verify
Call or Email:
Grace Wamwere
What's Near 14142 97th Avenue NE Kirkland, WA 98034?

Information is based on data available to the associate, including county records. The information has not been verified by the associate and all information presented should be verified by the buyer. Listings are provided by Northwest Multiple Listing Service as distributed by MLS GRID. The associate represented on this web site is not a multiple listing service but is a member of a local MLS.
DMCA Notice