16922 E Baldwin Avenue Spokane, WA 99016
16922 E Baldwin Avenue
Spokane, WA 99016
$435,000
Residential
4 Beds
3.00 Baths
2044 SqFt
Pending
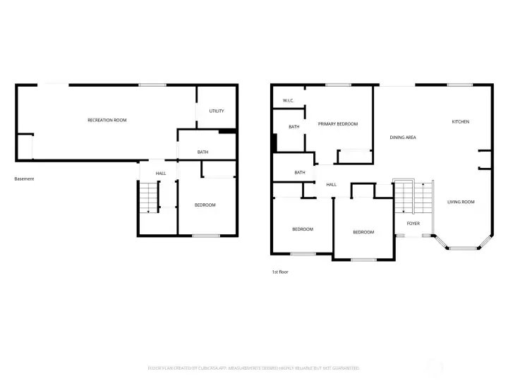
Skipping split-level homes in Spokane Valley might be a mistake buyers regret. The seller chose this home because space, function, and value came together. Ideally located in the Central Valley School District, this move-in ready home features fresh interior and exterior paint and A/C. With 4 bedrooms, 3 bathrooms, and approximately 2,044 square feet, it offers more space than many homes and is designed for how people live. The layout creates natural separation between living areas—perfect for gathering, entertaining, and privacy. Upstairs features bright living and dining spaces, while downstairs offers a flexible second living area, office, or guest retreat. Enjoy your own yard plus nearby parks and outdoor recreation. Minutes to shopping, dining, Sprague Ave, Sullivan Rd, and quick I-90 access for easy commuting. Homes with this layout and location don’t last—come see it today now!
Watch Virtual Tour #1Property Features
Community: Spokane Valley
Split Entry
Exterior: Wood Products
Roof: Composition
Parking: Attached Garage
Year Built: 2015
HOA Dues: $464
2025 Taxes: $4651.00
Buyer Broker Comp.: 2.5%
Listing #: 2504746
Lot Details
Lot Size: 0.14 acres
Interior
Cooling:
Heating: Forced Air
Electric
Natural Gas
Schools
District: Central Valley
Elem: Progress Elem
Middle: Greenacres Mid
High: Central Vly High
Call or Email:
Grace Wamwere
What's Near 16922 E Baldwin Avenue Spokane, WA 99016?

Information is based on data available to the associate, including county records. The information has not been verified by the associate and all information presented should be verified by the buyer. Listings are provided by Northwest Multiple Listing Service as distributed by MLS GRID. The associate represented on this web site is not a multiple listing service but is a member of a local MLS.
DMCA Notice