
Welcome to this 3-BR, 1.75-BA home in Hillwood!

Front and backyard both fully fenced.

Step inside and enjoy the open, light-filled dining room.

Formal Dining Room

Formal Dining Room

Living room is just two steps up from the dining room (great separation), with a wood fireplace and bright windows.

Living Room

Bright, spacious kitchen with custom cabinetry, stainless steel appliances and its own exterior door for easy outdoor access

Stacked washer and dryer duo in pantry area

Spacious primary bedroom with its own private back deck.

Primary bedroom with direct access to a private en-suite 3/4 bath

Ensuite 3/4 bath

Bedroom 2

Bedroom 3 (Office/Den)

Full bath

Primary bedroom opens to a private back deck with steps leading to the spacious backyard.

Perfect for morning coffee, tea or evening relaxation.

Inviting backyard with a firepit, fully fenced for privacy and enjoyment.

Detached two Car Garage with outbuilding workshop and additional 2-car off street parking.

Detached two Car Garage & Workshop with Sink attached.

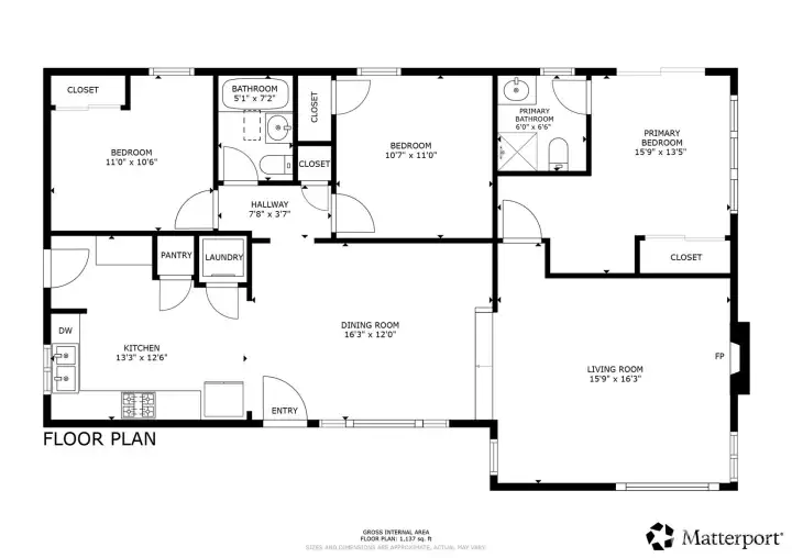
Floor Plan

Large lot with safe space to play!

Near to Fred Meyer's and Light Rail.

Close to Richmond Beach Saltwater Park, offering easy access to recreation and waterfront ambiance.

Kings School

North Light Rail Station Area

Town & Country Shopping

Richmond Highlands Community Center

Richmond Highlands Community Center

Library Park near the Wataer

Spin Alley Bowling & Vault 177 Pub

Sky Nursery

Saltwater Park Entrance

Richmond Beach Coffee Co.