
Gravel driveway/parking area lead to the park model which is set back on the lot

Side yard area adjacent to the park model with a view of the shed

Treed surroundings offering privacy throughout the lot

The entrance begins with a covered porch

The covered porch has a wall of windows for taking in the wooded surroundings in any weather

Living space w/ natural light and functional layout

Additional view of living area highlighting seating and flow

View from living room showing connection to kitchen

Dining area is positioned neatly along the back wall allowing for an open flow of the main living space

Open kitchen/dining flow into main living space

Kitchen area w/ full-size appliances

Addition providing expanded living and sleeping space

Interior of addition showing extended usable square footage

Another view of addition highlighting versatility for guests

Hall from kitchen to bathroom and primary bedroom

Full bathroom with tub/shower surround

Primary bedroom has direct bathroom access

Another view of the primary bedroom showing natural light

Free standing shed with deck

Great spot for summer barbeques

Inside the shed is another queen bed

Use for additional guests or convert to other living space or storage

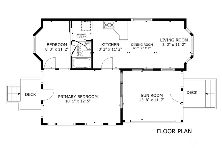
Matterport Floor Plan (room sizes are approximate)

Large fire pit located to the rear of th eproperty

Another storage shed located towards the back of the property as well as a wood shed

The Glen at Maple Falls is a recreational community located just 15 minutes from Silver Lake and the Mt Baker Snoqualmie National Forest

The "Family Center" has a variety of free games

Fireside Lodge has an outdoor pool and hot tub that are open year round, plus a sauna

Riverside Lodge has a seasonal pool

One of several community playgrounds and basketball courts

Laundry facilities

The Book Nook, a free lending library

9-hole disc golf course in the forest near Riverside Lodge

Pump track located near Riverside Lodge

New (2025) pickleball and tennis courts