10901 Greendale Drive SW Lakewood, WA 98498

Entry

Main Floor Office/Bedroom

Main Floor 3/4 Bath

Primary Suite

Sliders off the primary suite lower level

Primary BAth

Primary Double Shower

Primary Suite Sauna

Primary Suite Walk In Closet

Lower Level Bedroom

Lower Level Bedroom

Lower Level Bedroom

Utility Room Lower Level near bedrooms and notice DOG WASH

Lower Level Rec Room with Fireplace and slider to lake side
10901 Greendale Drive SW
Lakewood, WA 98498
$1,899,000
Residential
4 Beds
2.75 Baths
3572 SqFt
Active
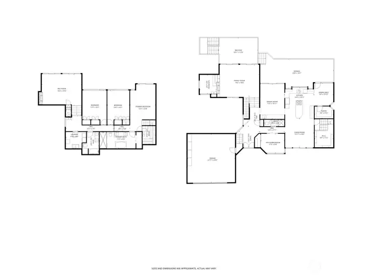
Remodeled home on about 100 feet of historic LAKE STEILACOOM, a rare find on OPEN WATER. This unique and architecturally significant home by Alan Liddle was recently renovated w/ impeccable style and taste. 4 Bedrooms with 2.75 baths. Massive NEW DOCK; about 550 sq feet. Living areas have walls of glass overlooking the lake; Living room w/ gas FP; dining room w/ buffet; kitchen w/ island; nook and large pantry; sitting area. LAKESIDE Primary suite w/spa-like bath; custom tile work; marble; towel warmer and SAUNA. Lower-level rec room w/ new gas fireplace. New stainless steel DOG WASH. MASSIVE large new deck w/ outdoor vinyl for carefree living. Added value comes from new custom millwork, new carpet, new systems like HVAC (AIR CONDITIONING), newer ROOF, and new windows, freshly painted. Over HALF ACRE gives room for extra parking or even a possible sports court! This is a rare blend of location on the lake, updates, and floor plan. A rarity in the market.
Watch Virtual Tour #1Property Features
Community: Lake Steilacoom
1 Story w/Bsmnt.
View: Lake
View: See Remarks
Waterfront: Lake
Waterfront: No Bank
Cable TV
Deck
Dock
Fenced-Partially
Moorage
Patio
RV Parking
Sprinkler System
Exterior: Wood
Roof: Composition
Parking: Driveway
Parking: Attached Garage
Parking: Off Street
Parking: RV Parking
Year Built: 1978
HOA Dues: $750
2025 Taxes: $14721.00
Buyer Broker Comp.: 2.5%
Listing #: 2504131
Lot Details
Lot Size: 0.60 acres
Curbs
Dead End Street
Paved
Interior
Bath Off Primary
Dining Room
Fireplace
Pantry
Sauna
Security System
Vaulted Ceiling(s)
Walk-In Closet(s)
Water Heater
Dbl Pane/Storm Window
Cooling: Forced Air, Heat Pump
Heating: Heat Pump, Forced Air
Electric
Propane
Fireplaces: 2
Schools
District: Clover Park
Elem: Idlewild Elem
Middle: Hudtloff Mid
High: Clover Park High
Call or Email:
Grace Wamwere
What's Near 10901 Greendale Drive SW Lakewood, WA 98498?

Information is based on data available to the associate, including county records. The information has not been verified by the associate and all information presented should be verified by the buyer. Listings are provided by Northwest Multiple Listing Service as distributed by MLS GRID. The associate represented on this web site is not a multiple listing service but is a member of a local MLS.
DMCA Notice