14911 202nd Avenue Court E Bonney Lake, WA 98391
14911 202nd Avenue Court E
Bonney Lake, WA 98391
$685,000
Residential
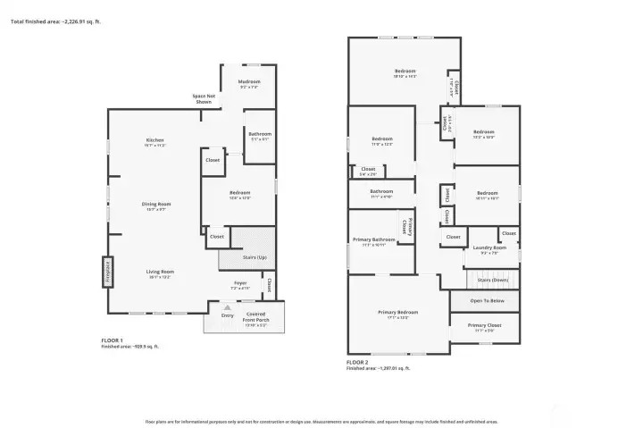
6 Beds
2.75 Baths
2596 SqFt
Active
Better than new in Tehaleh! Why wait for new construction when you can move into this pristine "Newhaven" by D.R. Horton, completed in 2025? This rare 6-bedroom floorplan is perfectly situated in Glacier Point, boasting some of the most up-close views of Mt. Rainier in the entire community. Your front door opens to a sprawling shared green space and sidewalk loop that serves as an extended front yard and community hub. Experience the ultimate Tehaleh lifestyle with 40+ miles of trails and numerous parks. For all you "swing lovers" out there, you’ll appreciate being located just a few houses down from the brand-new, uniquely designed, Skyline Park that is nothing but swings. The interior is a showstopper, but the real star is the unobstructed, iconic view of Mt. Rainier, visible directly from your primary suite window. Designed with multi-gen or main level living in mind, the home features a main-floor guest suite and bathroom with a shower. The layout includes a gourmet open-concept kitchen and a luxurious primary retreat with a spa-like soaking tub. This home surpasses new construction with $50,000 in fully PAID-OFF Solar Panels; the buyer inherits all energy savings with no loan. Extras include Central A/C, a whole-house air filtration system, custom window treatments, and all appliances. Rest easy knowing the builder’s 1-year warranty inspection is complete. Move-in ready, eco-friendly, and perfectly polished!
Watch Virtual Tour #1Property Features
Community: Tehaleh
2 Story
View:
View: Partial
View: See Remarks
View: Territorial
Dog Run
Electric Car Charging
Fenced-Partially
Patio
Exterior: Cement Planked
Roof: Composition
Parking: Driveway
Parking: Attached Garage
Parking: Off Street
Year Built: 2024
HOA Dues: $85
2026 Taxes: $7918.00
Buyer Broker Comp.: 2%
Listing #: 2503995
Lot Details
Lot Size: 0.09 acres
Curbs
Paved
Sidewalk
Appliances That Stay
Dishwasher
Refrigerator
Interior
Bath Off Primary
Dining Room
Fireplace
SMART Wired
Walk-In Closet(s)
Cooling: 90%+ High Efficiency
Heating: 90%+ High Efficiency, Forced Air
Electric
Fireplaces: 1
Community Features
CCRs
Park
Playground
Trail(s)
Open Houses
Apr 11: 1:00 PM - 3:00 PM
Schools
District: Sumner-Bonney Lake
Elem: Donald Eismann Elementary
Middle: Mtn View Middle
High: Bonney Lake High
Call or Email:
Grace Wamwere
What's Near 14911 202nd Avenue Court E Bonney Lake, WA 98391?

Information is based on data available to the associate, including county records. The information has not been verified by the associate and all information presented should be verified by the buyer. Listings are provided by Northwest Multiple Listing Service as distributed by MLS GRID. The associate represented on this web site is not a multiple listing service but is a member of a local MLS.
DMCA Notice