217 Bay Road Winlock, WA 98596
217 Bay Road
Winlock, WA 98596
$945,000
Residential
3 Beds
1.75 Baths
1748 SqFt
Active
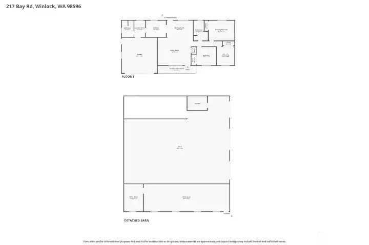
Beautiful 31.6± acre Pacific Northwest farm and homestead, well maintained and ready to bring your farm dreams to life! Conveniently located between Seattle and Portland, minutes from I-5. Enjoy peace, privacy, and stunning Mt. Rainier views from the front window. Charming 1328 sq ft one-level home with 3 bedrooms, 1.75 baths, custom wood floors, ductless mini-split, wood stove, and new roof (2023). Property features a 74x60 barn with immaculate workshop/office and 100 amp power, two 96x30 greenhouses, 20+/- acres pasture, and 10+/- acres mature forest. Features include fiber internet, new well pump (2026), irrigation tank, walk-in cooler, container, and much more.
Property Features
Community: Winlock
1 Story
View:
Barn
Fenced-Partially
Green House
High Speed Internet
Outbuildings
Shop
Exterior: Metal/Vinyl
Roof: Composition
Parking: Detached Carport
Parking: Attached Garage
Year Built: 1992
2025 Taxes: $2291.00
Listing #: 2503615
Lot Details
Lot Size: 31.64 acres
Dead End Street
Open Space
Paved
Value In Land
Appliances That Stay
Dryer
Microwave
Refrigerator
Stove(s)/Range(s)
Washer
Interior
Dining Room
Water Heater
Dbl Pane/Storm Window
Cooling: Ductless HP-Mini Split
Heating: Stove/Free Standing, Ductless HP-Mini Split, Baseboard
Electric
Schools
District: Winlock
Elem: Winlock Miller Elem
Middle: Winlock Mid
High: Winlock Snr High
Call or Email:
Grace Wamwere
What's Near 217 Bay Road Winlock, WA 98596?

Information is based on data available to the associate, including county records. The information has not been verified by the associate and all information presented should be verified by the buyer. Listings are provided by Northwest Multiple Listing Service as distributed by MLS GRID. The associate represented on this web site is not a multiple listing service but is a member of a local MLS.
DMCA Notice