2434 Trailside Drive NE #184 Olympia, WA 98506
2434 Trailside Drive NE #184
Olympia, WA 98506
$789,995
Residential
5 Beds
2.75 Baths
3408 SqFt
Active
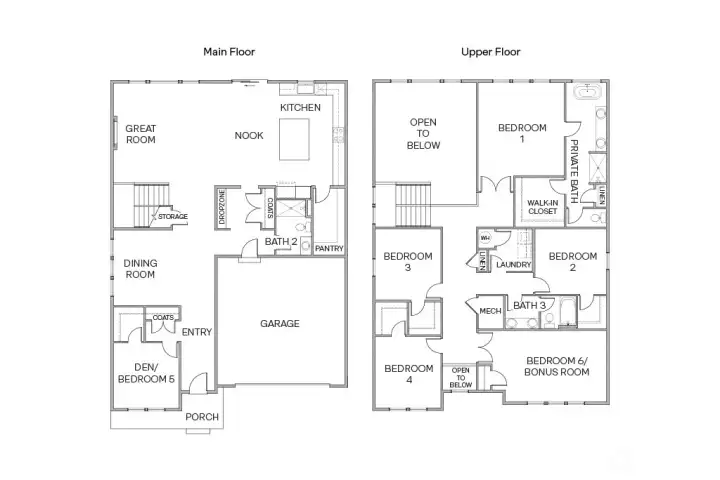
Welcome to Sleater Crossing by D.R. Horton, a new construction community on the border of Lacey and Olympia! The Caslon Plan is a stunning 5-bedroom, 2.75-bathroom home with a dramatic open great room that soars from the main level to the second floor, flooding the space with natural light. A main-floor bedroom and 3/4 bath add convenient flexibility for guests or a home office. Upstairs, a generous bonus room offers additional versatile living space. The home features laminate flooring throughout the main level living areas, cabinets with soft-close drawers and doors, white millwork, spindled staircase railing, stainless steel appliances with gas range, and quartz countertops. A heat pump provides efficient year-round comfort. Electric Vehicle Charger Ready with a pre-wired 50-amp dedicated circuit. Smart home technology and D.R. Horton’s 10-year warranty come standard. Community amenities include a park, half basketball court, open green spaces, and walking trails. The Chehalis Western Trail is nearby. Easy access to I-5, JBLM (13.7 mi), and Olympia’s historic district. Served by North Thurston School District with all three schools within approximately 1 mile. Special financing available through DHI Mortgage for qualified buyers. Buyers must register their broker on first visit, including open houses.
Property Features
Community: Olympia
2 Story
Athletic Court
Cable TV
Electric Car Charging
Gas Available
Patio
New Construction: Yes
Exterior: Cement Planked
Roof: Composition
Parking: Attached Garage
Year Built: 2026
HOA Dues: $81
2025 Taxes: $0.00
Buyer Broker Comp.: 2.0%
Listing #: 2502453
Lot Details
Lot Size: 0.12 acres
Curbs
Paved
Sidewalk
Appliances That Stay
Dishwasher
Disposal
Microwave
Stove(s)/Range(s)
Interior
Bath Off Primary
Fireplace
Walk-In Closet(s)
Water Heater
Cooling: Forced Air, 90%+ High Efficiency, Heat Pump
Heating: HRV/ERV System, 90%+ High Efficiency, Heat Pump, Forced Air
Electric
Natural Gas
Fireplaces: 1
Community Features
Athletic Court
CCRs
Park
Playground
Trail(s)
Open Houses
Apr 4: 10:00 AM - 6:00 PM
Apr 6: 10:00 AM - 6:00 PM
Apr 7: 10:00 AM - 6:00 PM
Apr 9: 10:00 AM - 6:00 PM
Apr 10: 10:00 AM - 6:00 PM
Apr 11: 10:00 AM - 6:00 PM
Apr 12: 10:00 AM - 6:00 PM
Apr 13: 10:00 AM - 6:00 PM
Apr 14: 10:00 AM - 6:00 PM
Apr 15: 10:00 AM - 6:00 PM
Schools
District: North Thurston
Elem: Pleasant Glade Elem
Middle: Chinook Mid
High: North Thurston High
Call or Email:
Grace Wamwere
What's Near 2434 Trailside Drive NE #184 Olympia, WA 98506?

Information is based on data available to the associate, including county records. The information has not been verified by the associate and all information presented should be verified by the buyer. Listings are provided by Northwest Multiple Listing Service as distributed by MLS GRID. The associate represented on this web site is not a multiple listing service but is a member of a local MLS.
DMCA Notice