6252 NW Bruggman Loop Bremerton, WA 98312

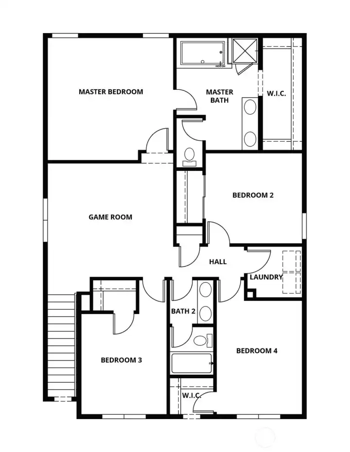
Example of the Oak floor plan to be located at 6252 NW Bruggman Loop
6252 NW Bruggman Loop
Bremerton, WA 98312
$656,900
Residential
5 Beds
3.00 Baths
2332 SqFt
Pending
Discover the Oak by LGI Homes at Eldorado, a thoughtfully designed two-story home where style meets functionality. Created with entertaining in mind, this layout features a spacious family room, a large dining area and a chef-ready kitchen with a quartz-topped island and breakfast bar that seamlessly connects the main living spaces. An additional bedroom downstairs and a versatile upstairs game room provide flexibility for guests, work or entertainment. At the heart of the home, the open-concept kitchen showcases quartz countertops, stylish cabinetry and a full suite of stainless-steel Whirlpool® appliances, all included in LGI’s CompleteHome Plus™ package. Upstairs, the luxurious owner’s suite offers a private retreat, while abundant storage throughout keeps everything organized. With designer vinyl plank flooring, a finished garage with a Wi-Fi-enabled opener, front yard landscaping, a fully fenced backyard and premium upgrades included at no extra cost, the Oak delivers exceptional value in a move-in-ready home built for entertaining and everyday living. If you are working with a licensed broker, please complete the Prospect Registration Agreement (*Site Registration Policy #4898) & submit prior to your first visit to the Eldorado Information Center
Property Features
Community: Silverdale
2 Story
Cable TV
Electric Car Charging
Fenced-Fully
High Speed Internet
New Construction: Yes
Exterior: Cement Planked
Exterior: Stone
Roof: Composition
Parking: Attached Garage
Year Built: 2026
HOA Dues: $53
2026 Taxes: $0.00
Buyer Broker Comp.: 2.5%
Listing #: 2502242
Lot Details
Lot Size: 0.15 acres
Curbs
Paved
Sidewalk
Appliances That Stay
Dishwasher
Disposal
Double Oven
Microwave
Interior
Bath Off Primary
Ceiling Fan(s)
High Tech Cabling
Walk-In Closet(s)
Dbl Pane/Storm Window
Cooling: Forced Air, 90%+ High Efficiency, Heat Pump
Heating: 90%+ High Efficiency, Heat Pump, Forced Air
Electric
Enviromental Certs
Northwest ENERGY STAR®
Community Features
CCRs
Park
Playground
Trail(s)
Schools
District: Central Kitsap #401
Elem: Silverdale Elem
Middle: Central Kitsap Middle
High: Central Kitsap High
Call or Email:
Grace Wamwere
What's Near 6252 NW Bruggman Loop Bremerton, WA 98312?

Information is based on data available to the associate, including county records. The information has not been verified by the associate and all information presented should be verified by the buyer. Listings are provided by Northwest Multiple Listing Service as distributed by MLS GRID. The associate represented on this web site is not a multiple listing service but is a member of a local MLS.
DMCA Notice