4 Valley Road NE Moses Lake, WA 98837
4 Valley Road NE
Moses Lake, WA 98837
$140,000
Land
0 Beds
0.00 Baths
0 SqFt
Active
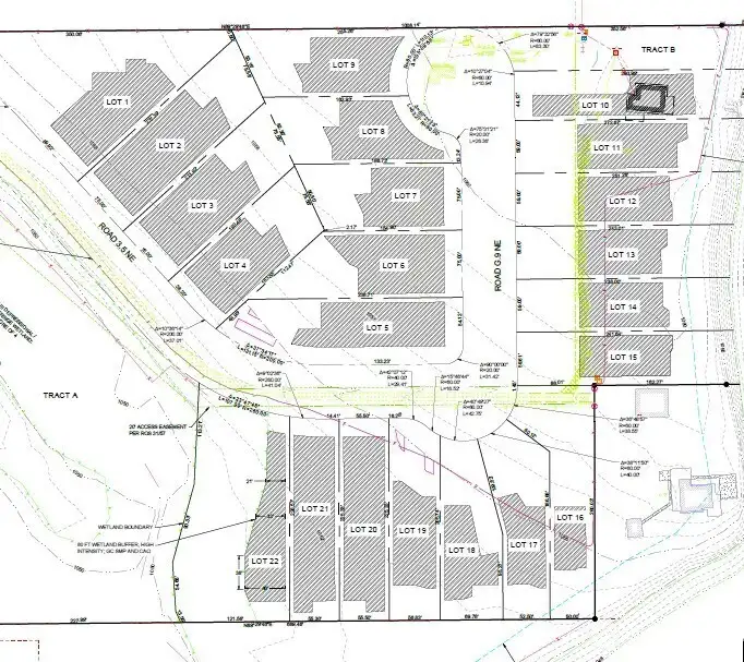
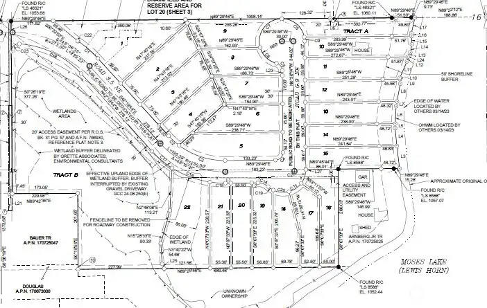
Are you looking for a picturesque setting, private gated community, with exclusive waterfront access? This is it and more! Barnhill Estates delivers a unique blend of luxury and natural beauty, 1/4 acre lots perfect for building a dream! Amenities include gated entry, private park, shared docks, low bank waterfront ensuring a lifestyle full of amazing memories and relaxation. Low-bank waterfront lots, lakeside, spacious interior lot options, gentle sloping topo grants breathtaking views of Moses Lake from every angle making it an ideal location for those who appreciate scenic beauty and tranquility. Water+power+4 bed approved septic designs. Bring your own builder or call for a referral. Build now or later, no time restriction.
Watch Virtual Tour #1Property Features
Community: Cascade Valley
Res-Less thn 1 Ac
View: City
View: Lake
Waterfront: Lake
Waterfront: Low Bank
Corners Flagged
Garden/Fruit Trees
Partially Cleared
Pool: Above Ground
2026 Taxes: $0.00
Buyer Broker Comp.: 2%
Listing #: 2501759
Lot Details
Lot Size: 0.31 acres
Lot Dimensions: Irregular
Cul-De-Sac
Paved
Topography: Level
Road: Paved
Road: Privately Maintained
Utilities
Electricity: On Property
Water: Available
Water: On Property
Gas: Not Available
Sewer: Not Available
Community Features
CCRs
Gated
Park
Schools
District: Moses Lake
Elem: Buyer To Verify
Middle: Midway Mid
High: Moses Lake High
Call or Email:
Grace Wamwere
What's Near 4 Valley Road NE Moses Lake, WA 98837?

Information is based on data available to the associate, including county records. The information has not been verified by the associate and all information presented should be verified by the buyer. Listings are provided by Northwest Multiple Listing Service as distributed by MLS GRID. The associate represented on this web site is not a multiple listing service but is a member of a local MLS.
DMCA Notice