659 E Franklin Street Connell, WA 99326
659 E Franklin Street
Connell, WA 99326
$349,000
Residential
4 Beds
2.50 Baths
1463 SqFt
Active
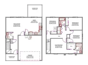
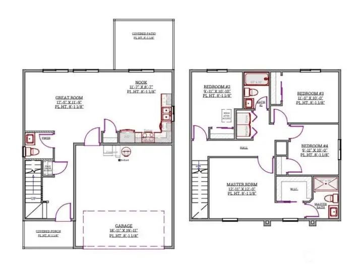
Under construction 2-story home in Connell, WA! This home has enough room for everyone! On the main level, you will find a large L-Shaped kitchen with a dining nook that has a slider that opens up to a covered backyard patio and a large great room. Also, a convenient half bath is located off the great room. Upstairs, you will find the primary bedroom with an ensuite bathroom and walk-in closet, as well as three other bedrooms, a full bathroom, and the laundry nook. Located just adjacent to a scenic bike path and only a few blocks from Pioneer Park and the Community Pool, this home offers easy access to recreational amenities while maintaining a peaceful and welcoming neighborhood.
Property Features
Community: Connell
2 Story
Patio
Sprinkler System
New Construction: Yes
Exterior: Cement/Concrete
Exterior: Stone
Exterior: Wood Products
Roof: Composition
Parking: Attached Garage
Year Built: 2026
2026 Taxes: $298.94
Buyer Broker Comp.: 2.5%
Listing #: 2501375
Lot Details
Lot Size: 0.14 acres
Curbs
Paved
Sidewalk
Appliances That Stay
Dishwasher
Disposal
Microwave
Stove(s)/Range(s)
Interior
Bath Off Primary
Ceiling Fan(s)
Walk-In Closet(s)
Dbl Pane/Storm Window
Cooling: Forced Air, Heat Pump
Heating: Forced Air
Electric
Schools
District: North Franklin
Elem: Connell Elem
Middle: Robert L Olds Jnr Hi
High: Connell High
Call or Email:
Grace Wamwere
What's Near 659 E Franklin Street Connell, WA 99326?

Information is based on data available to the associate, including county records. The information has not been verified by the associate and all information presented should be verified by the buyer. Listings are provided by Northwest Multiple Listing Service as distributed by MLS GRID. The associate represented on this web site is not a multiple listing service but is a member of a local MLS.
DMCA Notice