1371 W Axton Road Ferndale, WA 98248

Welcome to this historic home at 1371 W Axton Rd in Ferndale!

North East side of the home - 2 Acres, plenty of space and potential! Bring your dreams!

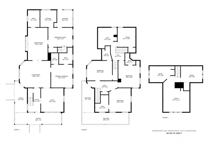
Layout/Floor Plan (Approx.)

Entry way - Main Floor

Great Room - Main Floor

Great Room

Dinning Rom - Main Floor

Dinning Room

Kitchen - Main Floor

Kitchen Pass-through Window

Bathroom - Main Floor

Breakfast Nook - Main Floor

Breakfast Nook

Laundry Room - Main Floor

Primary Bedroom - Main Floor

Primary Bedroom

Primary en suite Bathroom

Office/Study - Main Floor

Office/Study

2nd Bedroom - 2nd Floor

2nd Bedroom

2nd Bedroom en suite Bathroom

3rd Bedroom - 2nd Floor

3rd Bedroom w/included armoire

3rd Bedroom en suite Bathroom

3rd Bedroom en suite Bathroom

4th Bedroom - 2nd Floor

4th Bedroom en suite bathroom

2nd Office - 2nd Floor

Bathroom - 2nd Floor

Jetted Tub/Spa

Extra Room/Office - 3rd Floor

Bonus Room/Space

Bonus Room/Space - 3rd Floor

Extra Room/Office - 3rd Floor

East Side of House

East Side of House

South Side of House

Crescent Driveway provides ease of access on and off of the main road. 2 Acres, plenty of space and potential! Bring your dreams!

Storage Shed 10'X20'
1371 W Axton Road
Ferndale, WA 98248
$999,978
Residential
4 Beds
5.25 Baths
3502 SqFt
Active
Beautifully restored 1900 Victorian estate set on over 2 peaceful acres in Whatcom County. Once a beloved bed and breakfast & wedding venue, this home blends historic character with thoughtful modern updates, offering a rare mix of charm, comfort, and versatility. This home is a priceless opportunity to own a piece of Pacific Northwest history with all the comforts of today! Inside, original woodwork, intricate moldings, antique doors, and large windows fill the home with natural light and timeless detail. The spacious layout includes multiple living areas, ample bonus rooms, and ensuite bedrooms throughout, creating flexibility for multi-generational living, hosting, or creative use of space. Recent upgrades include a CertainTeed Presidential roof, high-efficiency Navien on-demand gas water heater, updated plumbing & electrical, and premium Toto toilets. A private indoor hot tub suite adds a unique spa-like retreat. Enjoy the wraparound porch, upper balcony, and beautifully maintained grounds, offering space to relax, gather, or entertain. With zoning that allows for a wide range of conditional uses such as: bed and breakfast, event venue, vacation rental, home-based business, or homesteading, the possibilities here are endless. Bring your dreams and ideas! Conveniently located just 10 minutes to Bellingham Intl Airport, 15 minutes to downtown Bellingham, and with easy access to I-5, this is a one-of-a-kind property that combines history, flexibility, and modern livability.
Property Features
Community: Ferndale
2 Story
Cable TV
Deck
High Speed Internet
Outbuildings
Patio
Bus Line Nearby: Yes
Exterior: Wood
Roof: Composition
Parking: Detached Carport
Parking: Driveway
Year Built: 1900
2025 Taxes: $5243.00
Buyer Broker Comp.: 2.5%
Listing #: 2501372
Lot Details
Lot Size: 2.01 acres
Lot Dimensions: 70' X 362' X 251' X 258' X 138' X 70'
Paved
Appliances That Stay
Dishwasher
Disposal
Dryer
Microwave
Stove(s)/Range(s)
Washer
Tankless Water Heater
Interior
Bath Off Primary
Dining Room
French Doors
Hot Tub/Spa
Jetted Tub
Water Heater
Cooling: None
Heating: High Efficiency (Unspecified), Forced Air
Natural Gas
Open Houses
May 23: 12:00 PM - 3:00 PM
May 24: 12:00 PM - 3:00 PM
Schools
District: Ferndale
Elem: Cascadia Elem
Middle: Vista Mid
High: Ferndale High
Call or Email:
Grace Wamwere
What's Near 1371 W Axton Road Ferndale, WA 98248?

Information is based on data available to the associate, including county records. The information has not been verified by the associate and all information presented should be verified by the buyer. Listings are provided by Northwest Multiple Listing Service as distributed by MLS GRID. The associate represented on this web site is not a multiple listing service but is a member of a local MLS.
DMCA Notice