
Welcome to the Caslon plan at Harrison Court by D.R Horton. Actual home is under construction and finishes, elevation, and paint colors may vary. See site agent for details.

Covered front and back porch with all homes! Pictures are examples.

Soaring ceilings in the living room allow for ample light. Photos are for representation purposes only. See agent for details.

Modern electric fireplace feature wall is focal point of the open plan living area.

Oversize kitchen is an entertainers dream!

Photos are for representation purposes only

Hard surface flooring graces the entry, living, kitchen and dining areas.

Formal dining area seats 8 or more comfortably!

Upgraded white cabinets included in lot 12 - 5 burner gas range!

Kitchen opens out to landscaped and fenced back yard. Outdoor sprinkler systems front and back included!

Photos are for representation purposes only.

Lower-level bedroom or office, photos are representation only.

Lower level 3/4 bath

Handy mud room off garage with ample storage!

Huge walk in pantry!

Top floor primary with double doors and large enough to fit a King sized bed.

Primary soaking tub with picture window

Double sinks, thick quartz slab counters. Photos are for representation purposes only.

Walk in shower in primary suite

Large walk in primary closet

One of 6 bedrooms!

Large upper floor bonus/media room faces South with lots of light!

Guest bathroom with tub and quartz counters

One of 6 bedrooms!

Top floor laundry room - appliances not included

Large covered patios and fully landscaped yards. Photos are for representation purposes only.

Full front and rear landscaping, sprinkler systems included.

Full front and rear landscaping, sprinkler systems included. Photo is for representation purposes only.

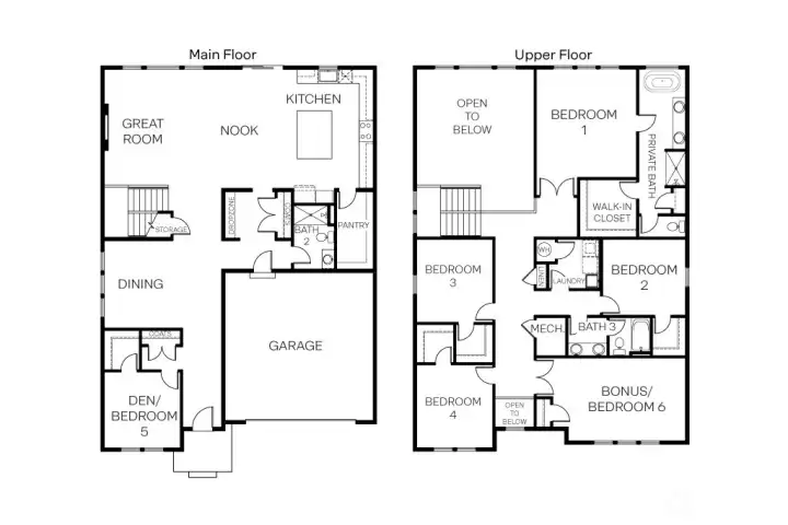
Caslon plan at Harrison Court