3 Burning Tree Drive #3 Yakima, WA 98902

primary bedroom
3 Burning Tree Drive #3
Yakima, WA 98902
$390,000
Condominium
2 Beds
2.50 Baths
2341 SqFt
Contingent
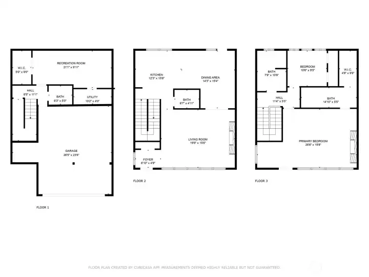
Recent renovation with everything new. Great central location. Upgraded finishes with slab countertops, undermount sinks, and tiled primary bathroom. Modern gas fireplaces in living room and primary bedroom. 2 covered balconies plus a patio to enjoy the outside. 2 car attached garage. New furnace and A/C unit. New stainless appliances including 36 inch gas cooktop. Office nook and large walk in closet in the primary bedroom. Community clubhouse and outdoor swimming pool. All ages community. Listing agent has an ownership interest.
Property Features
Community: Yakima
Townhouse
Floor: 1
Exterior: Wood
Roof: Composition
Parking: Individual Garage
Year Built: 1984
HOA Dues: $1050
2026 Taxes: $3006.69
Buyer Broker Comp.: 2.5%
Listing #: 2500681
Lot Details
Lot Size: 0.02 acres
Appliances That Stay
Dishwasher
Stove(s)/Range(s)
Interior
Cooking-Gas
Fireplace
Walk-In Closet(s)
Water Heater
Insulated Windows
Primary Bathroom
Balcony/Deck/Patio
Insulated Windows
Primary Bath
Walk-in Closet
Cooling:
Heating: 90%+ High Efficiency
Electric
Natural Gas
Fireplaces: 2
Common Features
Pool-Outdoor
Clubhouse
Call or Email:
Grace Wamwere
What's Near 3 Burning Tree Drive #3 Yakima, WA 98902?

Information is based on data available to the associate, including county records. The information has not been verified by the associate and all information presented should be verified by the buyer. Listings are provided by Northwest Multiple Listing Service as distributed by MLS GRID. The associate represented on this web site is not a multiple listing service but is a member of a local MLS.
DMCA Notice