1324 211th Avenue NE Sammamish, WA 98074
1324 211th Avenue NE
Sammamish, WA 98074
$399,000
Land
0 Beds
0.00 Baths
0 SqFt
Active
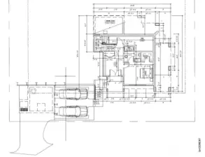
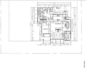
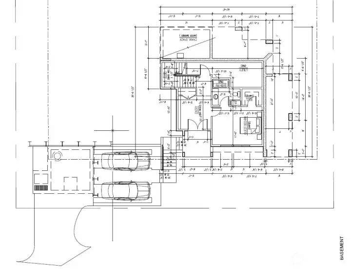
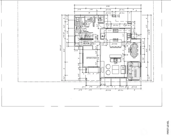
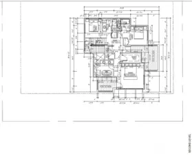
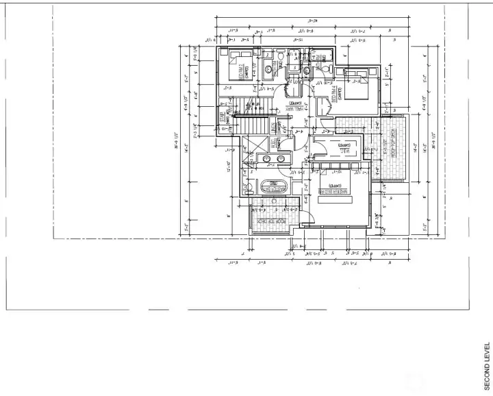
APPROVED PERMITS FOR FLOOR PLANS 3055 SFT. Spent $350000 on topographical survey, title report, soil test, Geo-Tech, structural and civil engineering drainage plans which means you are saving close to 12 months of time/effort in pre-permitting. Located in a quiet cul-de-sac just blocks from Lake Sammamish, this property is surrounded by high-end homes. This prime location is perfect for builders, developers, or anyone looking to design and build their dream home in a premier Eastside community. Build your dream! This is a rectangular lot. Enjoy convenient access to parks, trails, award-winning Lake Washington schools, and a location just minutes from Redmond, Bellevue and Issaquah. Optional Inglewood Beach Club Membership. Located just minutes from both Issaquah & Redmond Bring your vision, lots like this rarely come Available! Permitted plans are included in the list price. Photos contain rendering.
Property Features
Community: East Lake Sammamish
Res-Less thn 1 Ac
Pool: Above Ground
2026 Taxes: $2530.00
Buyer Broker Comp.: 2.5%
Listing #: 2500085
Lot Details
Lot Size: 0.23 acres
Cul-De-Sac
Road: See Remarks
Utilities
Electricity: Available
Water: Available
Gas: Available
Sewer: Available
Schools
District: Lake Washington
Elem: Mead Elem
Middle: Inglewood Middle
High: Eastlake High
Call or Email:
Grace Wamwere
What's Near 1324 211th Avenue NE Sammamish, WA 98074?

Information is based on data available to the associate, including county records. The information has not been verified by the associate and all information presented should be verified by the buyer. Listings are provided by Northwest Multiple Listing Service as distributed by MLS GRID. The associate represented on this web site is not a multiple listing service but is a member of a local MLS.
DMCA Notice