3915 245th Court SE Sammamish, WA 98029
3915 245th Court SE
Sammamish, WA 98029
$1,299,000
Residential
3 Beds
2.50 Baths
2300 SqFt
Active
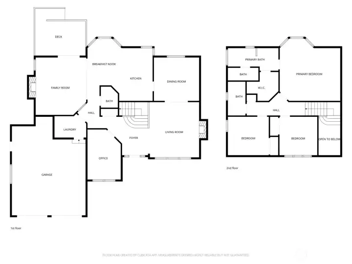
Experience the perfect balance of comfort and convenience in this meticulously maintained home, tucked away on a quiet cul-de-sac just steps from Yellow Lake. This residence offers a rare opportunity to move into a cherished space that has been kept in pristine condition, ready for you to enjoy as-is or to personalize with your own modern vision. From the moment you enter, the refinished hardwoods and abundance of natural light create a warm, inviting atmosphere. The main level is designed for both productivity and connection. A dedicated office/den offers a quiet workspace. While the living room/dining room and family room, each anchored by a cozy gas fireplace which set a sophisticated stage for gatherings. The functional kitchen features stainless steel appliances, gas cooktop and a bright eating nook that flows effortlessly into the family room, where you can access the expansive deck and enjoy the backyard mature lush landscape supported by full sprinkler system. Upstairs, the primary suite serves as a spacious sanctuary, complete with sitting area, double sinks, a soaking tub, separate shower, and a generous walk-in closet. With a well-maintained roof featuring new ridge caps, new hot water tank, fresh interior and exterior paint, and new carpet and LVT, the heavy lifting has already been done. Beyond your front door, enjoy all Klahanie has to offer, pools, parks, sport courts and trails. Award winning Issaquah School District.
Watch Virtual Tour #1Property Features
Community: Klahanie
2 Story
View: Territorial
Deck
Fenced-Fully
Gas Available
High Speed Internet
Sprinkler System
Exterior: Wood
Roof: Composition
Parking: Attached Garage
Year Built: 1989
HOA Dues: $100
2025 Taxes: $10864.00
Buyer Broker Comp.: 2.5%
Listing #: 2499997
Lot Details
Lot Size: 0.22 acres
Cul-De-Sac
Curbs
Sidewalk
Appliances That Stay
Dishwasher
Disposal
Dryer
Microwave
Refrigerator
Stove(s)/Range(s)
Washer
Watch Virtual Tour #2Interior
Bath Off Primary
Ceiling Fan(s)
Dining Room
Fireplace
Skylight(s)
Walk-In Closet(s)
Dbl Pane/Storm Window
Cooling: None
Heating: Forced Air
Natural Gas
Fireplaces: 2
Community Features
Athletic Court
CCRs
Park
Playground
Trail(s)
Open Houses
Apr 3: 4:00 PM - 6:00 PM
Apr 4: 1:00 PM - 4:00 PM
Apr 5: 1:00 PM - 4:00 PM
Schools
District: Issaquah
Elem: Challenger Elem
Middle: Beaver Lake Mid
High: Skyline High
Call or Email:
Grace Wamwere
What's Near 3915 245th Court SE Sammamish, WA 98029?

Information is based on data available to the associate, including county records. The information has not been verified by the associate and all information presented should be verified by the buyer. Listings are provided by Northwest Multiple Listing Service as distributed by MLS GRID. The associate represented on this web site is not a multiple listing service but is a member of a local MLS.
DMCA Notice