
Welcome home to Kirklandaire Condos! The living room opens directly to a private, covered back deck for year-round enjoyment

This top-floor end unit offers privacy and modern comfort in the heart of Kirkland.

Top floor end unit has a covered entrance with a convenient keyless lock

A bright and inviting entry hall separates the private sleeping quarters from the open-concept living spaces.

Spacious kitchen with tiled counters and backsplash

Kitchen and dining room

Stainless steel appliances

Kitchen overlooks the living room

Investor Alert! No rental cap and low HOA dues (covering water, sewer, and garbage) make this a high-yield opportunity.

Living rooms gets fantastic natural light

Relax on the deck featuring updated patio tiles and a retractable sun shade for hot summer afternoons

Take in breathtaking sunsets and sweeping views of the Olympic Mountain range from your private balcony

An ideal outdoor sanctuary for morning coffee or evening cocktails

A well-connected layout designed for modern, effortless living

The primary suite features versatile top-down/bottom-up shades to perfectly balance light and privacy

Refresh in the generous full bath with custom tile work. Added convenience with a stackable washer/dryer located just outside the door.

A spacious second bedroom; ideal for guests, home office, or creative studio.

Prime Location: A 2-minute walk to the Cross Kirkland Corridor and minutes from Google, downtown Kirkland, and easy I-405/520 access.

Enjoy peace and quiet in this boutique 12-unit complex. Includes two assigned parking spaces.

Desirable upper level end unit. New roof in 2024!

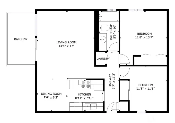
Rare find: An additional dedicated storage closet is included with the unit!

Floor Plan