1301 67th Street SE #15C Auburn, WA 98092
1301 67th Street SE #15C
Auburn, WA 98092
$544,950
Condominium
2 Beds
1.75 Baths
1754 SqFt
Active
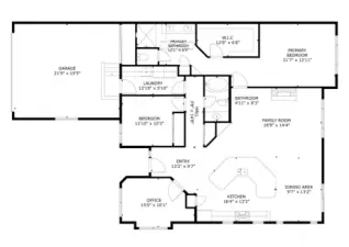
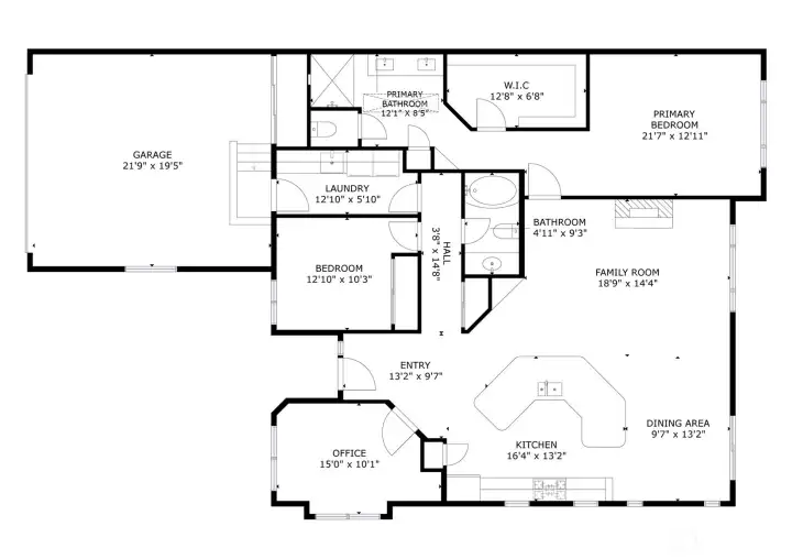
Experience luxury and effortless living in the prestigious gated 55+ community of Palisades at Lakeland. This meticulously maintained home captures your attention from the moment you arrive, greeted by an elegant front walkway with refreshed landscaping. Inside, you'll find a masterclass in modern elegance with an open-concept floor plan that seamlessly connects the entry to the living & dining spaces. The refined kitchen has been updated with a massive granite slab island that serves as a beautiful centerpiece for meal prep or a quiet morning coffee. You’ll appreciate the stainless steel appliances, gorgeous hardwood floors, generous pantry, and convenient instant hot water dispenser. Whether you choose to enjoy a meal in the dining room or step through the slider to the partially covered back deck, fully refreshed in 2024, the transition between indoor and outdoor living is seamless and serene. Relax in the living room featuring stately crown molding and a cozy gas fireplace, or retreat to the spacious primary suite, complete with a walk-in closet and a beautifully updated 3/4 bath with dual sinks & bright skylight. A flexible den/office offers the perfect quiet workspace or hobby room, while the laundry/mudroom adds ultimate functionality with a utility sink, built-in cabinetry & beverage fridge. Enjoy a true low-maintenance lifestyle as the HOA manages all lawn care and landscaping. Welcome home to a peaceful, year-round retreat in a convenient Lakeland Hills location.
Watch Virtual Tour #1Property Features
Community: Lakeland
Condo (1 Level)
Floor: 1
Age Restriction: Yes
Exterior: Metal/Vinyl
Exterior: Stone
Roof: Composition
Parking: Individual Garage
Year Built: 2005
HOA Dues: $550
2025 Taxes: $5906.00
Buyer Broker Comp.: 2.5%
Listing #: 2499780
Lot Details
Curbs
Paved
Sidewalk
Appliances That Stay
Dishwasher
Disposal
Dryer
Microwave
Refrigerator
Stove(s)/Range(s)
Washer
Interior
Cooking-Electric
Dryer-Electric
Fireplace
Ice Maker
Sprinkler System
Walk-In Closet(s)
Washer
Insulated Windows
Primary Bathroom
Ground Floor
End Unit
Balcony/Deck/Patio
End Unit
Ground Floor
Insulated Windows
Primary Bath
Sprinkler System
Walk-in Closet
Walk-in Pantry
Cooling:
Heating: Forced Air
Electric
Natural Gas
Fireplaces: 1
Common Features
Age Restriction
Cable TV
Fire Sprinklers
Gated Entry
High Speed Int Avail
Outside Entry
Security Gate
Open Houses
Apr 4: 11:00 AM - 1:00 PM
Call or Email:
Grace Wamwere
What's Near 1301 67th Street SE #15C Auburn, WA 98092?

Information is based on data available to the associate, including county records. The information has not been verified by the associate and all information presented should be verified by the buyer. Listings are provided by Northwest Multiple Listing Service as distributed by MLS GRID. The associate represented on this web site is not a multiple listing service but is a member of a local MLS.
DMCA Notice