10850 Marine View Drive SW Seattle, WA 98146
10850 Marine View Drive SW
Seattle, WA 98146
$1,200,000
Residential
4 Beds
2.00 Baths
2810 SqFt
Active
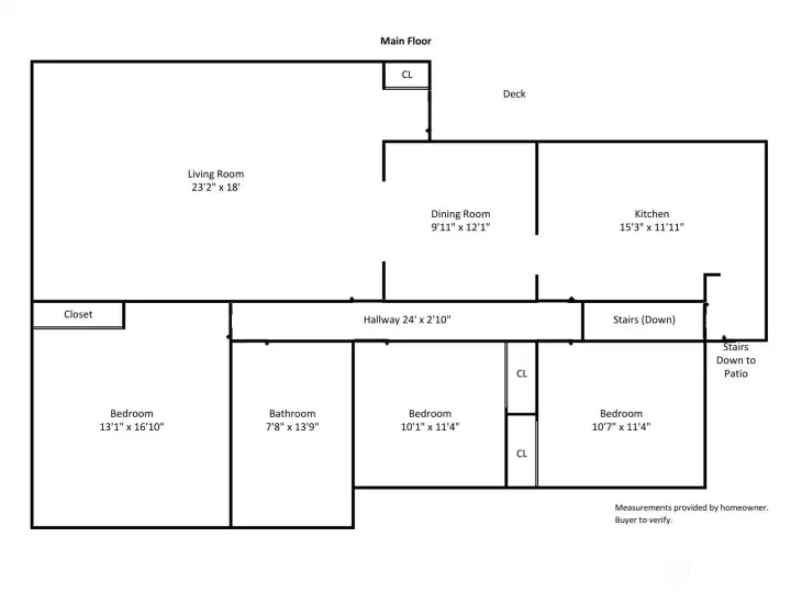
As you explore this beautifully maintained home perched on a peaceful, sunny lot on Marine View Drive, you will immediately start dreaming about how the vast spaces and easy layout will be yours to play with. Situated in a scenic and quiet pocket of Arbor Heights, this home has so much to offer - a perfect blend of comfort, space and charm. Enjoy peekaboo views of the Puget Sound and Mount Rainier as your backdrop, creating a tranquil environment for everyday living. The main level features 3 generously sized bedrooms and a huge living room filled with natural light - ideal for both relaxing and entertaining. Even the large kitchen and bathroom will make you smile with their thoughtful, vintage touches. The remodeled lower level provides exceptional versatility with a new kitchenette, an additional bedroom, a spacious family room and a bonus room perfect for a home office, gym or creative space. Step outside to a large, nicely landscaped yard with plenty of room to unwind or host gatherings. With abundant parking, including a two-car garage, there’s space for all your needs. This home truly offers the best of peaceful living with functional, flexible spaces and beautiful natural surroundings. Close to schools, the Arbor Heights Swim Club, parks and shopping, yet tucked away feeling as if you're on vacation right at home.
Property Features
Community: Marine View
1 Story w/Bsmnt.
View:
View: Partial
View: Territorial
Cable TV
Deck
Fenced-Fully
High Speed Internet
Patio
RV Parking
Bus Line Nearby: Yes
Exterior: Wood
Roof: Composition
Parking: Driveway
Parking: Attached Garage
Parking: Off Street
Parking: RV Parking
Year Built: 1948
2025 Taxes: $2244.37
Buyer Broker Comp.: 2.5%
Listing #: 2499504
Lot Details
Lot Size: 0.24 acres
Lot Dimensions: 10,350
Paved
Appliances That Stay
Dishwasher
Disposal
Dryer
Microwave
Refrigerator
See Remarks
Stove(s)/Range(s)
Washer
Interior
Second Kitchen
Dining Room
Fireplace
Jetted Tub
Water Heater
Dbl Pane/Storm Window
Cooling: Forced Air, Heat Pump
Heating: 90%+ High Efficiency, Heat Pump, Forced Air
Electric
Fireplaces: 2
Open Houses
Apr 2: 11:30 AM - 1:00 PM
Apr 3: 3:30 PM - 5:00 PM
Apr 4: 1:00 PM - 3:00 PM
Apr 5: 1:00 PM - 3:00 PM
Schools
District: Seattle
Elem: Arbor Heights
Middle: Buyer To Verify
High: Buyer To Verify
Call or Email:
Grace Wamwere
What's Near 10850 Marine View Drive SW Seattle, WA 98146?

Information is based on data available to the associate, including county records. The information has not been verified by the associate and all information presented should be verified by the buyer. Listings are provided by Northwest Multiple Listing Service as distributed by MLS GRID. The associate represented on this web site is not a multiple listing service but is a member of a local MLS.
DMCA Notice