12960 Sunrise Drive NE Bainbridge Island, WA 98110

Set on 1.06 acres of high-bank waterfront, this extensively renovated home captures sweeping views across Puget Sound to the Cascade Mountains, Mt. Rainier, and the Seattle skyline.

Another gorgeous sunrise!

scale is approximate.
12960 Sunrise Drive NE
Bainbridge Island, WA 98110
$3,648,000
Residential
3 Beds
3.25 Baths
3761 SqFt
Pending
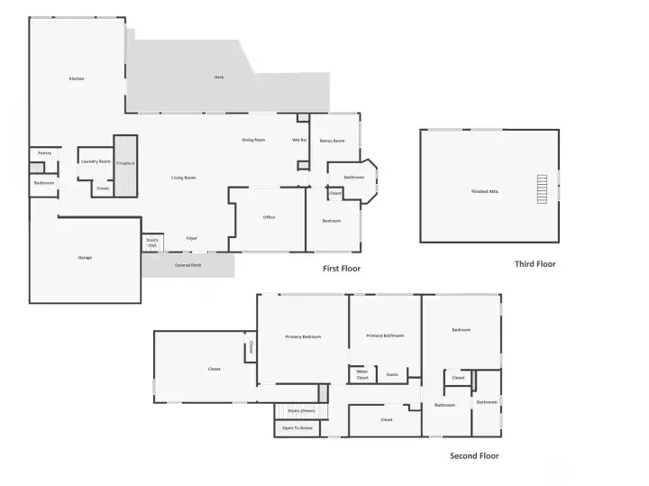
Rare Bainbridge Island waterfront offering with protected, panoramic water views from a fully bulkheaded high-bank setting, capturing stunning sunrises over Downtown Seattle, the Cascades, Mt. Rainier, and the ever-changing maritime activity along the shipping lanes. A private tree-lined drive opens to a near-circular driveway, creating a quiet, stately sense of arrival, set within a rare, fully level 1-acre parcel. Designed in a timeless Coastal Craftsman style, the home has been extensively reimagined with over $1M invested, encompassing magazine-worthy design alongside meaningful infrastructure and system upgrades. The interior unfolds with a natural, connected flow, well suited for both everyday living and entertaining, with views from nearly every room. The expansive kitchen is stunning, with vaulted ceilings, a new AGA range, a generous island, and a sunlit breakfast nook, all oriented toward two walls of windows that capture breathtaking eastern and southern views. The home offers 3 bedrooms, each with its own ensuite, along with a Murphy bed in the office. The primary suite is a true retreat, with sweeping views, a deck, dramatic vaulted ceilings, a walk-in closet of exceptional scale, & a spa-like ensuite bath with sauna. A covered mahogany view deck extends from the kitchen, dining room, and living room, complete with integrated heaters, and opens to an expansive, flat lawn set against commanding views. Ideally located near Fay Bainbridge Park & Rolling Bay's shops.
Watch Virtual Tour #1Property Features
Community: Sunrise
2 Story
View:
View: City
View: Sound
Waterfront: Bulkhead
Waterfront: Sound
Waterfront: High Bank
Cable TV
Deck
High Speed Internet
Patio
Propane
Sprinkler System
Bus Line Nearby: Yes
Exterior: Wood
Roof: Composition
Parking: Driveway
Parking: Attached Garage
Year Built: 1952
2026 Taxes: $17604.94
Buyer Broker Comp.: 2.5%
Listing #: 2497118
Lot Details
Lot Size: 1.06 acres
Adjacent to Public Land
Paved
Appliances That Stay
Dishwasher
Dryer
Microwave
Refrigerator
Stove(s)/Range(s)
Washer
Tankless Water Heater
Watch Virtual Tour #2Interior
Second Primary Bedroom
Bath Off Primary
Dining Room
Fireplace
French Doors
Pantry
Sauna
Vaulted Ceiling(s)
Walk-In Closet(s)
Water Heater
Wet Bar
Wired for Generator
Dbl Pane/Storm Window
Cooling: Forced Air, Heat Pump
Heating: Heat Pump, Radiant, Forced Air
Electric
Propane
Wood
Fireplaces: 1
Schools
District: Bainbridge Island
Elem: xalilc Elementary
Middle: Buyer To Verify
High: Bainbridge Isl
Call or Email:
Grace Wamwere
What's Near 12960 Sunrise Drive NE Bainbridge Island, WA 98110?

Information is based on data available to the associate, including county records. The information has not been verified by the associate and all information presented should be verified by the buyer. Listings are provided by Northwest Multiple Listing Service as distributed by MLS GRID. The associate represented on this web site is not a multiple listing service but is a member of a local MLS.
DMCA Notice