9020 13th Avenue NW #C Seattle, WA 98117
9020 13th Avenue NW #C
Seattle, WA 98117
$779,950
Residential
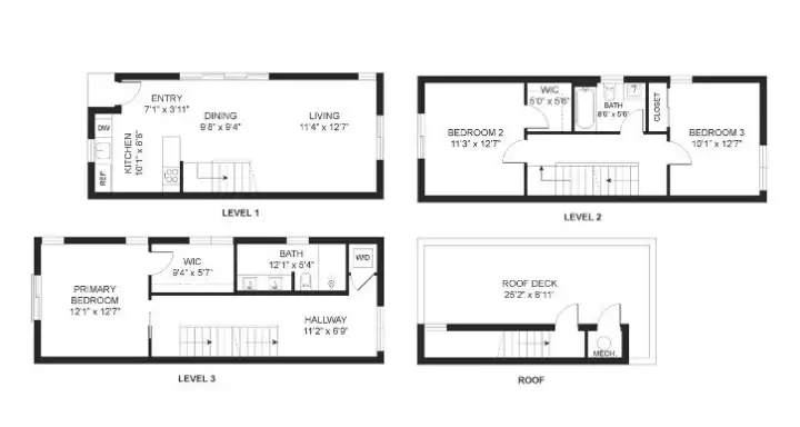
3 Beds
1.75 Baths
1575 SqFt
Active
Introducing Maple Grove, new development from Blackwood Homes! Stunning, high-quality, 4 Star BuiltGreen 3-bedroom home. Beautiful quartz countertops, Abodian cabinetry, wide-plank flooring, LG appl & washer and dryer. A private yard off the living room. Spacious primary suite w/vaulted ceilings includes, walk-in closet, & spa-style bath w/oversized rain shower. Ductless AC, & additional roof top deck for entertaining. Great Crown Hill location near Met Market, transit, parks, cafes, & more. Generous layouts w/distinctive floor plans to customize your experience 1575-1667 SQFT.
Property Features
Community: Crown Hill
Townhouse
View: Territorial
Fenced-Fully
High Speed Internet
Rooftop Deck
New Construction: Yes
Bus Line Nearby: Yes
Exterior: Cement Planked
Exterior: Wood
Roof: Flat
Parking: Off Street
Year Built: 2025
2026 Taxes: $1.00
Buyer Broker Comp.: 2.5%
Listing #: 2496850
Lot Details
Lot Size: 0.03 acres
Lot Dimensions: 19X64
Curbs
Paved
Sidewalk
Appliances That Stay
Dishwasher
Dryer
Microwave
Refrigerator
Stove(s)/Range(s)
Washer
Interior
Bath Off Primary
Dining Room
Sprinkler System
Vaulted Ceiling(s)
Walk-In Closet(s)
Water Heater
Dbl Pane/Storm Window
Cooling: Ductless HP-Mini Split
Heating: Ductless HP-Mini Split, Wall Furnace
Electric
Enviromental Certs
Built Green™
Schools
District: Seattle
Elem: Loyal Heights
Middle: Whitman Mid
High: Ingraham High
Call or Email:
Grace Wamwere
What's Near 9020 13th Avenue NW #C Seattle, WA 98117?

Information is based on data available to the associate, including county records. The information has not been verified by the associate and all information presented should be verified by the buyer. Listings are provided by Northwest Multiple Listing Service as distributed by MLS GRID. The associate represented on this web site is not a multiple listing service but is a member of a local MLS.
DMCA Notice