
A timeless Craftsman presence anchors the heart of downtown Snohomish. Bathed in twilight glow, this iconic façade showcases classic proportions, deep overhangs, brick detailing, and a welcoming front porch—an unmistakable landmark with enduring architectural gravitas.

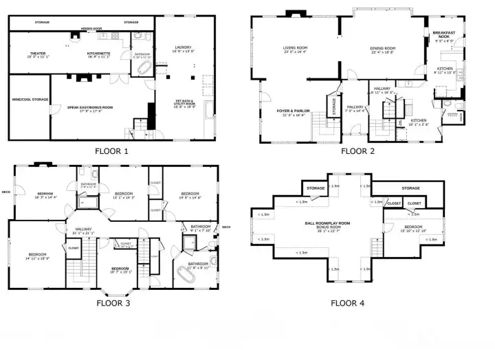
The floorplan reveals a home designed to unfold by experience, not just square footage. Level 1 offers a true speakeasy-style lower level—complete with wine storage, tasting room, theater, kitchenette, full bath, and an expansive utility space—creating an immersive entertaining retreat rarely found in historic homes. Level 2 is the heart of the residence, where gracious living and dining rooms, a well-appointed kitchen, and a charming breakfast nook come together for everyday living and gathering. Level 3 is dedicated to private bedroom chambers, thoughtfully arranged for comfort, light, and separation from public spaces. Crowning the home, Level 4 is a remarkable original ballroom where Snohomish High School once held dances in the 1930s and 1940s—now offering inspired flexibility as a playroom, yoga studio, creative space, or dance hall, honoring the home’s storied past while inviting new possibilities.

As dusk settles, the gated entry sets a quiet, distinguished tone—framing the home in soft light and signaling arrival to a place of substance and privacy. Brick pillars, mature landscaping, and a sweeping drive create a sense of ceremony, while the glow from within hints at the warmth and history waiting beyond the gate. This is not simply an entrance, but a gracious welcome home.

Architectural depth and craftsmanship unfold from every angle. Expansive porches, dormered rooflines, and rich shingle siding highlight the scale and versatility of this historic estate, thoughtfully designed for both grand entertaining and everyday living.

A private garden courtyard invites connection and calm. Stone pathways, ambient lighting, and a pergola-draped outdoor living space create an intimate retreat—perfect for evening gatherings, quiet moments, or seamless indoor-outdoor entertaining.

A grand introduction unfolds from the moment you step inside. Richly stained coffered ceilings, original millwork, and glowing hardwoods frame an elegant living space anchored by a classic fireplace—setting the tone for a home defined by authenticity and architectural integrity.

The heart of the home reveals itself in this stunning central hall. A statement staircase, leaded glass built-ins, and handcrafted details speak to a level of craftsmanship rarely found today, creating a sense of permanence, heritage, and quiet grandeur.An inviting living room centers around a classic tiled fireplace, framed by original millwork and coffered ceilings. Generous seating, warm light, and refined craftsmanship create a space equally suited for intimate evenings or elegant entertaining.

Intimate yet expansive, the main living area showcases built-in seating, artisan woodwork, and period lighting, flowing effortlessly into the formal dining room—an ideal setting for gatherings that feel both refined and warmly personal.

A true formal dining room offers scale, symmetry, and timeless sophistication. Coffered ceilings, leaded glass cabinetry, and a statement chandelier set the stage for memorable gatherings—where tradition, craftsmanship, and modern comfort meet.

A charming breakfast nook blends historic character with modern function. Original wood-trimmed windows, patterned tile floors, and a cozy built-in feel create an inviting space for morning coffee or casual meals, seamlessly connected to the kitchen while overlooking the garden beyond.

A thoughtfully renovated kitchen blends historic charm with modern design. Custom cabinetry in a rich blue tone, marble-style counters, and period-inspired lighting connect seamlessly to the breakfast nook, creating a warm, functional heart of the home.

Timeless details shine in this chef-worthy kitchen, featuring a farmhouse sink, classic subway tile, marble counter tops, and a statement vintage-style refrigerator—where old-world character meets contemporary convenience.

A study in both beauty and function, the “cold kitchen” offers a refined space dedicated to preparation, storage, and quiet morning rituals. Crisp white cabinetry rises to the ceiling, framed by classic millwork and period-inspired detailing, while deep navy lower cabinets ground the space with a rich, tailored contrast. Marble countertops and a farmhouse sink sit beneath a wall of divided-light windows, filling the room with soft, natural light. The vintage-inspired refrigerator—both statement and conversation piece—anchors the room with timeless character, echoing the home’s historic roots while seamlessly blending with modern convenience. Thoughtfully designed for efficiency, this secondary kitchen allows the main entertaining spaces to remain pristine while supporting everyday living behind the scenes. A rare and intentional feature, the dual “hot and cold kitchen” concept elevates both function and lifestyle—offering a level of sophistication seldom found, even in luxury hom

A charming secondary prep space and "hot" kitchen enhances the kitchen’s versatility. Patterned tile floors, natural light, and additional storage create a functional extension ideal for entertaining, baking, or everyday organization.

Designed for both beauty and performance, the kitchen showcases a professional-grade 8-burner double range/oven beneath a custom hood, surrounded by crisp cabinetry and historic trim—an inspired setting for serious cooks and casual meals alike.

Rich woodwork and handcrafted details take center stage in the home’s iconic staircase hall. Leaded glass built-ins, original newel posts, and warm hardwoods reflect the craftsmanship and permanence of a bygone era.

A serene primary bedroom offers warmth and comfort with hardwood floors, custom millwork, and a classic gas fireplace. Soft light and generous proportions create a peaceful retreat grounded in historic elegance with a huge deck!

A tastefully updated 3/4 bathroom honors the home’s era with period-appropriate finishes, a classic vanity, and original trim—balancing modern function with timeless design.

This inviting bedroom highlights vintage wallpaper, walk-in closet, and warm wood accents. A charming space that feels personal, comfortable, and rich with character.

Another generously sized bedroom with walk-in closet continues the theme of authenticity, featuring hardwood floors, classic trim, and abundant natural light—perfect for guests, family, or a home office

A versatile bedroom currently styled as a home office with walk-in closet offers flexibility without sacrificing charm. Bay windows fill the space with natural light, while original trim and hardwood floors create an inspiring setting equally suited for remote work, a guest room, or a private retreat.

A generously sized bedroom offers flexibility for modern living, comfortably accommodating both sleeping and has a large walk-in closet with plenty of space to add a bedroom workspace. Hardwood floors, original trim, and natural light create a calm, functional room ideal for guests or everyday living.

A spa-like main hall bath blends vintage elegance with thoughtful updates. A classic clawfoot soaking tub and shower with a separate walk-in shower, pedestal sink, patterned wallpaper, and original details create a serene retreat that feels both timeless and indulgent.

A charming upper-level bedroom features vaulted ceilings, abundant natural light, and room for both rest and study. This versatile space is perfect as a guest suite, creative studio, or private retreat tucked away from the main living areas.

A hidden speakeasy-inspired lower level sets the stage for unforgettable evenings. Warm wood tones, lattice ceiling detail, ambient lighting, and a cozy fireplace create an intimate wine-tasting and entertaining space unlike anything else in downtown Snohomish.

Designed for gathering, this wine cellar and tasting room blends Old World charm with relaxed sophistication. Barrel accents, custom wine storage, and soft lighting make this a destination space for hosting and celebration.

A stylish kitchenette anchors the lower level, ideal for entertaining. Open shelving, beverage fridge, and thoughtful prep space allow the speakeasy experience to flow seamlessly from tasting to dining to movie night.

A dedicated theater room delivers a true cinematic experience. Plush seating, dramatic wall color, and immersive lighting create a private screening space perfect for movies, sports, or late-night gatherings.

A beautifully finished lower-level bath features modern fixtures and thoughtful design, offering convenience and comfort for guests enjoying the entertainment spaces.

The lower level includes a stunning full bath with custom tile work and a deep soaking tub—blending spa-like comfort with design-forward finishes rarely found in basement spaces. Possibility of a MIL or STR.

A remarkably large utility room provides exceptional functionality, featuring laundry, storage, workspace, and a dedicated pet wash station—perfect for modern living without sacrificing style or space.

The expansive covered front porch is a defining feature — wrapped in brick columns, softly lit with café lighting, and overlooking mature landscaping. This is a place for morning coffee, evening conversations, and watching downtown Snohomish stroll by.

Framed by brick arches and café lights, this porch-side view centers on a once-humble rhododendron that has matured into a sculptural tree—its twisting limbs and evergreen canopy now serving as a living focal point of the garden. In every season, it offers privacy, shade, and a sense of permanence, anchoring the outdoor space with quiet elegance and reminding you that this property, like the home itself, has been thoughtfully grown and stewarded over time.

A covered side porch enhances everyday living, providing a sheltered transition between indoor spaces and the garden below.

The backyard is unexpectedly expansive and beautifully curated, featuring a stone patio, pergola with ambient lighting, manicured lawn, and layered garden beds. Fully enclosed and thoughtfully designed, it offers privacy, versatility, and year-round enjoyment — equally suited for entertaining or quiet moments at home.

Stone pathways lead through thoughtfully designed garden areas, reinforcing the sense of intention and care woven throughout the property.

A level, fully enclosed lawn offers rare green space in downtown Snohomish, surrounded by established landscaping that provides both privacy and beauty.

The Iverson House's Craftsman façade is rich in character, blending shingle siding, brick detailing, and balanced proportions that anchor it as a true downtown landmark.

A carriage house garage mirrors the home’s architectural character, blending seamlessly into the property while offering secure parking and additional storage.