743 N 86th Street Seattle, WA 98103
743 N 86th Street
Seattle, WA 98103
$655,000
Residential
1 Beds
0.75 Baths
650 SqFt
Active
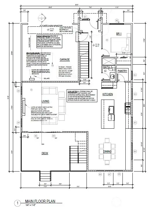
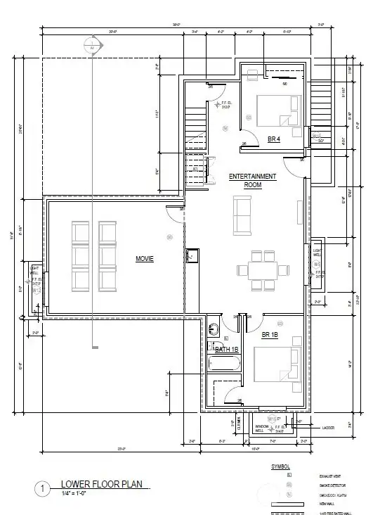
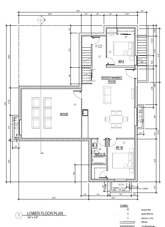
Rare permit-ready opportunity to build a custom Modern Farmhouse in one of Seattle’s most desirable and peaceful neighborhoods. This sale includes fully approved plans for a substantial 4,133 sq ft residence featuring 7 bedrooms and 5 full bathrooms. Bypass the long city wait times and break ground immediately on this shovel-ready project.The home is designed with an open, efficient layout spanning two stories plus a fully finished basement. The upper level features a large flex room ideal for a dedicated home office or secondary primary suite. The basement offers exceptional versatility with potential for a separate ADU (Accessory Dwelling Unit)—perfect for generating rental income or facilitating multi-generational living. Alternatively, the space can serve as a private entertainment wing with a home theater, gym, and guest quarters.Ideally located in a "sweet spot" between Greenwood’s popular restaurants and the recreation of Green Lake, the site is close to parks, grocery options, and top-rated schools. Commuters will appreciate the easy access to Hwy 99 and I-5. This is a unique chance for builders or end-users to secure a 7-bedroom permit-ready estate with instant equity potential.
Property Features
Community: Green Lake
1 Story
View: Territorial
Fenced-Fully
Bus Line Nearby: Yes
Exterior: Wood
Roof: Composition
Parking: Detached Garage
Year Built: 1944
2025 Taxes: $5914.50
Buyer Broker Comp.: 2.5%
Listing #: 2496115
Lot Details
Lot Size: 0.12 acres
Curbs
Paved
Secluded
Appliances That Stay
Refrigerator
Stove(s)/Range(s)
Interior
Dining Room
Fireplace
Dbl Pane/Storm Window
Cooling: None
Heating: Radiant
Electric
Fireplaces: 1
Schools
District: Seattle
Elem: Daniel Bagley
Middle: Robert Eagle Staff Middle School
High: Ingraham High
Call or Email:
Grace Wamwere
What's Near 743 N 86th Street Seattle, WA 98103?

Information is based on data available to the associate, including county records. The information has not been verified by the associate and all information presented should be verified by the buyer. Listings are provided by Northwest Multiple Listing Service as distributed by MLS GRID. The associate represented on this web site is not a multiple listing service but is a member of a local MLS.
DMCA Notice