2902 13th Street #3B Everett, WA 98201

Main floor

Living room

Kitchen

Half bathroom

Full bathroom

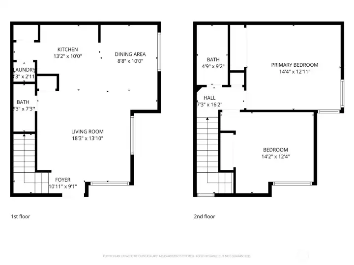
Floor plan
2902 13th Street #3B
Everett, WA 98201
$325,000
Condominium
2 Beds
1.50 Baths
1028 SqFt
Active
Move-in ready townhome-style living in the quiet Pine Village community! This freshly updated condo features a bright, open-concept layout with new interior paint and durable waterproof flooring throughout the main and upper levels. The spacious kitchen has been refreshed with new floor tiles and features a functional eating bar that flows seamlessly into the dining and living areas. The upper level offers two oversized bedrooms with generous closet space and a full bathroom. Natural light fills the entire home, which has been updated with modern recessed lighting. Outside, the home features a private front courtyard patio—perfect for outdoor seating, container gardening, or grilling. Seller is offering buyer credits to help with mortgage costs or a rate buy-down! Experience a hassle-free lifestyle with a comprehensive HOA utility bundle that covers water, sewer, garbage, and all exterior maintenance. This unit includes a reserved parking space and access to guest parking. Ideally located with quick access to I-5, the Everett Waterfront, shopping, and parks. Clean, modern, and ready for its new owner!
Property Features
Community: North Everett
Condo (2 Levels)
Floor: 1
View: Territorial
Exterior: Cement Planked
Roof: Composition
Parking: Uncovered
Year Built: 1989
HOA Dues: $590
2025 Taxes: $2554.00
Buyer Broker Comp.: 3%
Listing #: 2496012
Lot Details
Lot Size: 0.05 acres
Corner Lot
Paved
Sidewalk
Appliances That Stay
Dishwasher
Interior
Water Heater
Insulated Windows
End Unit
Balcony/Deck/Patio
End Unit
Insulated Windows
Cooling: None
Heating: Wall Furnace
Electric
Schools
District: Everett
Elem: Hawthorne Elem
Middle: North Mid
High: Everett High
Call or Email:
Grace Wamwere
What's Near 2902 13th Street #3B Everett, WA 98201?

Information is based on data available to the associate, including county records. The information has not been verified by the associate and all information presented should be verified by the buyer. Listings are provided by Northwest Multiple Listing Service as distributed by MLS GRID. The associate represented on this web site is not a multiple listing service but is a member of a local MLS.
DMCA Notice