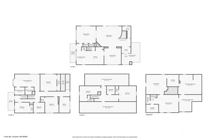
1 East Road Tacoma, WA 98406
1 East Road
Tacoma, WA 98406
$1,225,000
Residential
7 Beds
3.75 Baths
4872 SqFt
Active
Timeless Old Town estate rich in historic prestige, character and presence. Designed by noted Tacoma architect Frederick Heath, this meticulously maintained 1908 home blends original craftsmanship with thoughtful updates that preserve its era. Expansive grounds with heated pool and adjacent buildable lot, creating a rare opportunity for future value, expansion or generational living. Multiple decks and partial water views from several levels, with elevated outlooks from upper floors. Storybook third story retreat and unique dusting porch add architectural charm rarely found. Interior details shine with original banister, rich wood floors, built-ins and vintage laundry chute connecting levels. Distinctive step-down walk-in entry closet + preserved cabinetry reflect the home’s character. Kitchen features fir cabinetry, Sub-Zero, Dacor gas range and Bosch dishwasher. Full copper repipe plus 220V for EV/hot tub. Basement offers rec room, bonus studio, pantry, workshop and flexible living space.Walkable to Proctor, Old Town and waterfront. Architecturally significant property offering land, lifestyle and legacy ownership in one of Tacoma’s most iconic neighborhoods.
Watch Virtual Tour #1Watch Virtual Tour #3Property Features
Community: North Tacoma
View: Bay
View: See Remarks
View: Territorial
Cable TV
Deck
Electric Car Charging
Fenced-Fully
Gas Available
High Speed Internet
Irrigation
Pool: Above Ground
Bus Line Nearby: Yes
Exterior: Brick
Exterior: Wood
Roof: Composition
Parking: Driveway
Parking: Off Street
Year Built: 1908
2025 Taxes: $11856.00
Buyer Broker Comp.: Negotiable%
Listing #: 2495637
Lot Details
Lot Size: 0.20 acres
Corner Lot
Curbs
Paved
Sidewalk
Appliances That Stay
Dishwasher
Disposal
Dryer
Microwave
Refrigerator
Stove(s)/Range(s)
Washer
Watch Virtual Tour #2Interior
Bath Off Primary
Dining Room
Fireplace
Pantry
Walk-In Closet(s)
Water Heater
Dbl Pane/Storm Window
Cooling: None
Heating: Radiator, See Remarks
Electric
Natural Gas
Fireplaces: 1
Open Houses
Mar 28: 11:00 AM - 3:00 PM
Schools
District: Tacoma
Elem: Lowell
Middle: Mason
High: Stadium
Call or Email:
Grace Wamwere
What's Near 1 East Road Tacoma, WA 98406?

Information is based on data available to the associate, including county records. The information has not been verified by the associate and all information presented should be verified by the buyer. Listings are provided by Northwest Multiple Listing Service as distributed by MLS GRID. The associate represented on this web site is not a multiple listing service but is a member of a local MLS.
DMCA Notice