
Dining Room or Formal Living Space (virtually staged)

Generous entry space with kitchen, eating area, and great room in the background (virtually staged).

Room adjacent to entry - could serve as dining room or living space as virtually staged.

Loft and second living area above.

Great room with fireplace and door to rear deck

Kitchen with office/den down hallway straight ahead, entry to left, family room behind.

Main floor full bath

Office/ Den

Living space on second floor, lofted above formal living room (virtually staged).

Living space is heated with pellet stove (virtually staged).

Large primary suite.

(Virtually staged)

Dual vanity primary ensuite with large soaker tub.

Guest bedroom 1 with Jack-n-Jill bath to right (virtually staged),

Guest bedroom 2 with Jack-n-Jill bath between this and guest bedroom 1 (virtually staged).

Guest bedroom 3 (virtually staged), next door to laundry.

Jack-n-Jill bathroom between guest bed 1 (ahead) 2 (behind), and hallway to left.

Laundry on second floor.

Spacious three car garage.

Expansive deck off of the great room kitchen/ family room area.

Hot tub included with sale at zero value for appraisal purposes.

Huge shop, 48' wide by 40' deep.

Two pedestrian doors with small lofted area at rear of space.

Four large shop doors: three 11'9"-tall × 11'-wide doors & one oversized 13'3"-tall × 10'-wide door.

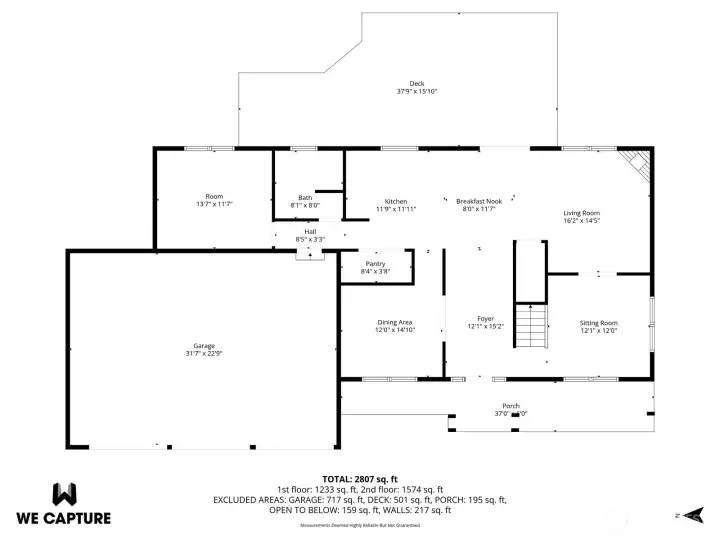
Main floor floorplan

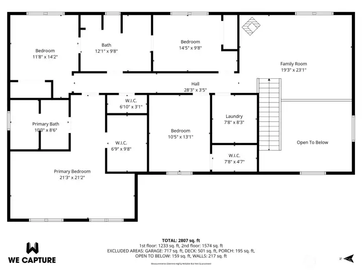
Second story floorplan

Rough overhead of property with property lines approximated on image.