4358 72nd Drive NE Marysville, WA 98270

Photographs are for illustrative purposes only. Features, finishes, interior/exterior colors, landscaping and floorplan shown may vary from actual homes built.

Photographs are for illustrative purposes only. Features, finishes, interior/exterior colors, landscaping and floorplan shown may vary from actual homes built.

Photographs are for illustrative purposes only. Features, finishes, interior/exterior colors, landscaping and floorplan shown may vary from actual homes built.
4358 72nd Drive NE
Marysville, WA 98270
$799,990
Residential
5 Beds
2.75 Baths
3059 SqFt
Pending
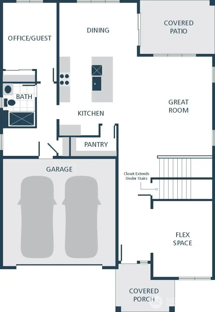
Welcome to the Savannah plan on Lot 49 in the beautiful new Williams Pointe community, a thoughtfully designed 3,059 sq ft home that blends modern comfort with timeless style. This spacious layout features five bedrooms and 2.75 bathrooms, including a convenient main-floor bedroom paired with a three-quarter bath—ideal for guests or multigenerational living. The main level also offers a dedicated flex space, perfect for a home office, playroom, or hobby area, along with an open-concept design showcasing gorgeous laminate hardwood flooring throughout the kitchen, dining area, and great room. White painted millwork and classic five-panel doors add a clean, elegant finish. The kitchen shines with quartz countertops, stainless steel appliances, and smart functionality ideal for everyday living and entertaining. Upstairs, enjoy a versatile loft area that provides additional living space for relaxation or media use. The luxurious primary suite serves as a private retreat with a spa-inspired ensuite featuring a relaxing lounge tub. Built with energy efficiency in mind, this new construction home includes an efficient heat pump, modern systems, and the confidence of a new home warranty. Located in Marysville , this home also includes a $15,000 builder credit—making this an exceptional opportunity to own a brand-new, energy-efficient home in a growing community.
Property Features
Community: Sunnyside
2 Story
View: Territorial
New Construction: Yes
Exterior: Wood Products
Roof: Composition
Parking: Attached Garage
Year Built: 2026
HOA Dues: $50
2025 Taxes: $0.00
Buyer Broker Comp.: 2%
Listing #: 2495619
Lot Details
Lot Size: 0.16 acres
Appliances That Stay
Dishwasher
Microwave
Stove(s)/Range(s)
Interior
Bath Off Primary
High Tech Cabling
Loft
Walk-In Closet(s)
Cooling: Heat Pump
Heating: Heat Pump
Electric
Schools
District: Marysville
Elem: Sunnyside Elem
Call or Email:
Grace Wamwere
What's Near 4358 72nd Drive NE Marysville, WA 98270?

Information is based on data available to the associate, including county records. The information has not been verified by the associate and all information presented should be verified by the buyer. Listings are provided by Northwest Multiple Listing Service as distributed by MLS GRID. The associate represented on this web site is not a multiple listing service but is a member of a local MLS.
DMCA Notice