23466 Sunserra Loop NW Quincy, WA 98848
23466 Sunserra Loop NW
Quincy, WA 98848
$675,000
Residential
2 Beds
2.50 Baths
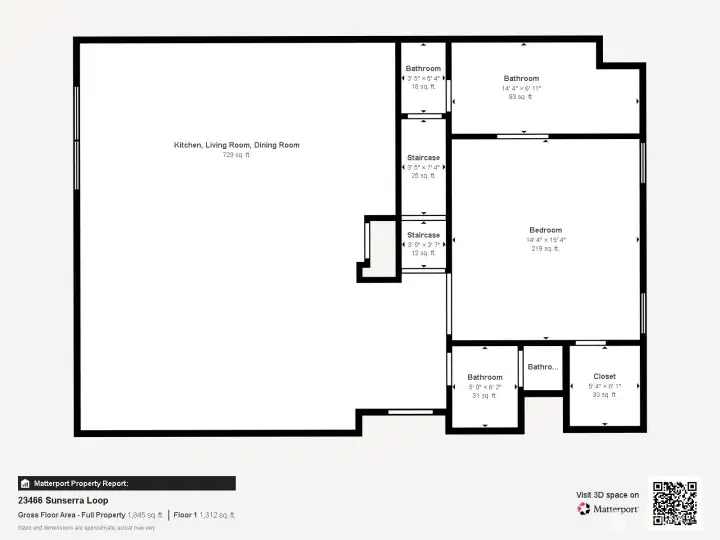
1813 SqFt
Active
Welcome to the highly sought-after gated community of Sunserra at Crescent Bar. This beautifully maintained, fully furnished 1,813 sq ft home boasts what may be the most premier location in all of Sunserra—offering sweeping views of the golf course, clubhouse, and Columbia River right from your living room and kitchen. Currently operating as a successful vacation rental w over $40,000 in summer bookings secured, making it an exceptional investment opportunity as well as a personal getaway. The main level features a spacious primary suite complete w/ an ensuite bathroom, walk-in closet & serene views overlooking the pool, kiddie pool, hot tub & tennis & pickle ball courts. Main floor also includes a bright and open living area, well-appointed kitchen which open to the covered patio & firepit & 5 star views. Upstairs, you’ll find a generous bonus room, second bedroom & a full bathroom—perfect for guests or additional living space. Home has been impeccably cared for, showcasing true pride of ownership, w/ a furnace & heat pump updated in 2022 for added comfort. Sunserra’s resort amenities include five pools, hot tubs, tennis courts & a ball field, all set within a beautifully maintained community. Just beyond, Crescent Bar offers some of the region’s best boating, fishing, hiking & outdoor recreation along the Columbia River. Just a short drive from The Gorge Amphitheater, Wenatchee, Columbia Valley wineries & multiple ski destinations. Garage available for purchase separately.
Property Features
Community: Crescent Bar
Townhouse
View:
View: Golf Course
Athletic Court
Gated Entry
High Speed Internet
Irrigation
Patio
Exterior: Cement Planked
Roof: Composition
Parking: Driveway
Year Built: 2005
HOA Dues: $516
2025 Taxes: $4802.00
Buyer Broker Comp.: 2.5%
Listing #: 2495483
Lot Details
Lot Size: 0.06 acres
Lot Dimensions: 65' x 41'
Paved
Sidewalk
Appliances That Stay
Dishwasher
Disposal
Dryer
Microwave
Refrigerator
Stove(s)/Range(s)
Washer
Interior
Bath Off Primary
Ceiling Fan(s)
Sprinkler System
Vaulted Ceiling(s)
Walk-In Closet(s)
Water Heater
Dbl Pane/Storm Window
Cooling: Heat Pump
Heating: Heat Pump, Forced Air
Electric
Schools
District: Quincy
Elem: Buyer To Verify
Middle: Buyer To Verify
High: Buyer To Verify
Call or Email:
Grace Wamwere
What's Near 23466 Sunserra Loop NW Quincy, WA 98848?

Information is based on data available to the associate, including county records. The information has not been verified by the associate and all information presented should be verified by the buyer. Listings are provided by Northwest Multiple Listing Service as distributed by MLS GRID. The associate represented on this web site is not a multiple listing service but is a member of a local MLS.
DMCA Notice