0 Byron Avenue Bellingham, WA 98225
0 Byron Avenue
Bellingham, WA 98225
$890,000
Land
0 Beds
0.00 Baths
0 SqFt
Active
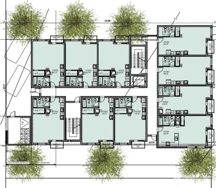
This is an exceptional investment opportunity in Bellingham's thriving Samish Way Urban Village, a designated federal Opportunity Zone. With plans to build 45-55 studio units (initial plans show 40, with potential for an additional 10-15 units), this project offers lucrative potential in a vibrant, mixed-use neighborhood near Western Washington University.The location is ideal—nestled between I-5 and the Sehome/York neighborhoods, the Samish Way Urban Village is designed for 5-7 story developments that promote density, walkability, and connectivity. Nearby, the Samish Commons project is already setting the tone with affordable housing, commercial spaces, and enhanced pedestrian pathways.Investors will also benefit from Bellingham’s 8-year Multi-Family Tax Exemption (MFTE) program, available in this area. This incentive provides a property tax exemption on new residential improvements for projects with at least five units, without affordability requirements—a rare opportunity to maximize market-rate returns. At approximately $18K per unit, the numbers make this project even more compelling.Whether developed as high-demand condos or rental apartments, this property aligns with market trends and offers significant tax advantages, including Opportunity Zone incentives for long-term gains. Don't miss your chance to capitalize on this prime location and robust growth potential.
Property Features
Community: Sehome
Res-Less thn 1 Ac
View: Territorial
Corners Flagged
Pool: Above Ground
2025 Taxes: $1365.00
Buyer Broker Comp.: 2.5%
Listing #: 2494767
Lot Details
Lot Size: 0.26 acres
Lot Dimensions: 74 x 125
Paved
Topography: Sloped
Road Sides: East
Road: Paved
Utilities
Electricity: Available
Water: Available
Water: In Street
Gas: Available
Sewer: Available
Sewer: In Street
Schools
District: Bellingham
Elem: Happy Vly Elem
Middle: Fairhaven Mid
High: Sehome High
Call or Email:
Grace Wamwere
What's Near 0 Byron Avenue Bellingham, WA 98225?

Information is based on data available to the associate, including county records. The information has not been verified by the associate and all information presented should be verified by the buyer. Listings are provided by Northwest Multiple Listing Service as distributed by MLS GRID. The associate represented on this web site is not a multiple listing service but is a member of a local MLS.
DMCA Notice