10414 SE 13th Street Bellevue, WA 98004
10414 SE 13th Street
Bellevue, WA 98004
$3,195,000
Residential
4 Beds
3.25 Baths
3740 SqFt
Active
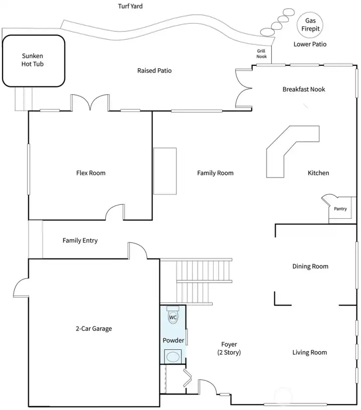
Located in Bellevue's sought-after Enatai neighborhood, this thoughtfully designed home showcases timeless finishes with versatile spaces for modern living. This home perfectly blends location and lifestyle, with top-rated schools, close proximity to downtown Bellevue, plus easy access to I-90, Seattle and the new light rail. The main level features light-filled spaces anchored by birch hardwood floors and a 2-story entry. The open floor plan, accented by contemporary light fixtures, includes living and dining rooms, updated kitchen w/ stainless steel appliances, family room, and a large flex room ideal for media, fitness, work or play. Designed for entertaining, kitchen double doors open to a patio with a hot tub, heat lamps, and an electric retractable awning. The patio connects seamlessly to the flex room and steps down to a turf yard perfect for play or practice. A sunken custom gas fire pit sets the stage for magical evenings. Upstairs offers the primary suite, a secondary ensuite bedroom and two additional spacious bedrooms connected by a flex room, plus a bath with separate WC/shower. The upstairs office (optional 5th bedroom) has double French doors, a closet, and built-in storage. All bedroom closets include custom storage systems. New carpet upstairs completes this turn-key home. Additional amenities include A/C, heat pump, Lutron shades, Nest thermostat, security and sprinkler systems, and ample storage. Pre-inspection & sewer scope reports provided upon request.
Watch Virtual Tour #1Property Features
Community: Enatai
2 Story
Hot Tub/Spa
Patio
Sprinkler System
Bus Line Nearby: Yes
Exterior: Stone
Exterior: Wood Products
Roof: Composition
Parking: Attached Garage
Year Built: 2004
2025 Taxes: $18649.00
Listing #: 2494276
Lot Details
Lot Size: 0.17 acres
Appliances That Stay
Dishwasher
Disposal
Double Oven
Dryer
Microwave
Refrigerator
Stove(s)/Range(s)
Washer
Interior
Bath Off Primary
Dining Room
Fireplace
French Doors
Hot Tub/Spa
Pantry
Security System
Sprinkler System
Vaulted Ceiling(s)
Walk-In Closet(s)
Water Heater
Dbl Pane/Storm Window
Cooling: Forced Air, Heat Pump, See Remarks
Heating: Heat Pump, Forced Air, See Remarks
Electric
Natural Gas
Fireplaces: 1
Community Features
Park
Playground
Trail(s)
Schools
District: Bellevue
Elem: Enatai Elem
Middle: Chinook Mid
High: Bellevue High
Call or Email:
Grace Wamwere
What's Near 10414 SE 13th Street Bellevue, WA 98004?

Information is based on data available to the associate, including county records. The information has not been verified by the associate and all information presented should be verified by the buyer. Listings are provided by Northwest Multiple Listing Service as distributed by MLS GRID. The associate represented on this web site is not a multiple listing service but is a member of a local MLS.
DMCA Notice