5400 Meeker Drive #128 Kalama, WA 98625
5400 Meeker Drive #128
Kalama, WA 98625
$115,000
Manufactured Home
3 Beds
2.00 Baths
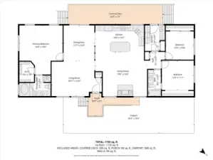
1782 SqFt
Pending Inspection
Spacious 3 bed, 2 bath manufactured home in Columbia Terrace Estates in Kalama offering 1,782 sq ft of comfortable living space. Built in 1981, this home features a functional layout, large utility room, electric forced air heat, and a generous deck with ramp access—great for relaxing or entertaining. Interior includes carpet throughout most of the home, vinyl in kitchen and baths, aluminum windows, classic paneling, and a large built-in hutch for added character and storage. Home was re-plumbed approximately 20 years ago. Heat pump is currently not operational and ready for your updates. Includes storage shed and is conveniently located minutes from I-5 and close to Kalama’s waterfront, parks, and recreation. Great opportunity to add your own touches in a well-located community.
Property Features
Community: Kalama
Manuf-Double Wide
Exterior: Wood Products
Roof: Composition
Parking: Carport
Year Built: 1981
2026 Taxes: $31.99
Buyer Broker Comp.: 2.5%
Listing #: 2494160
Lot Details
Lot Size: 0.13 acres
Lot Dimensions: see map
Paved
Appliances That Stay
Dishwasher
Refrigerator
Stove(s)/Range(s)
Interior
Bath Off Primary
Patio/Porch/Deck
Walk-In Closet
Cooling: Heat Pump
Heating: Forced Air
Electric
Fireplaces: 1
Schools
District: Kalama
Elem: Kalama Elem
Middle: Kalama Jnr Snr High
High: Kalama Jnr Snr High
Call or Email:
Grace Wamwere
What's Near 5400 Meeker Drive #128 Kalama, WA 98625?

Information is based on data available to the associate, including county records. The information has not been verified by the associate and all information presented should be verified by the buyer. Listings are provided by Northwest Multiple Listing Service as distributed by MLS GRID. The associate represented on this web site is not a multiple listing service but is a member of a local MLS.
DMCA Notice