13 Woodinville-Redmond Road Woodinville, WA 98052
13 Woodinville-Redmond Road
Woodinville, WA 98052
$4,000,000
Residential
5 Beds
5.50 Baths
5308 SqFt
Active
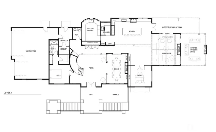
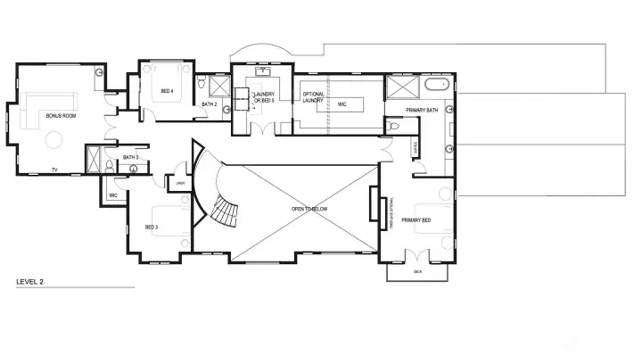
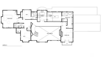
Presenting a rare and refined opportunity to build your custom luxury home in the heart of Woodinville, just a gentle stroll from its artisanal cafés, wine-tasting rooms, and celebrated dining. This exclusive homesite offers the perfect canvas to design a residence that captures your personal vision of modern elegance and timeless comfort. Partner with our architects, designer, and craftsmen to create a home that reflects your lifestyle—from an inspired architectural plan to hand-selected finishes that define quality and sophistication. Picture sunlit living spaces that flow effortlessly to outdoor entertaining areas, a gourmet kitchen tailored to your culinary passions, a spa-like primary retreat, and distinctive design touches that make every moment at home exceptional. Nestled in a serene enclave surrounded by nature, with valley views, yet moments from the vibrancy of Woodinville wine country, this is luxury living reimagined—offering space, serenity, and convenience in one of the region’s most sought-after destinations.
Property Features
Community: Bear Creek
2 Story
New Construction: Yes
Exterior: Cement Planked
Roof: Metal
Parking: Attached Garage
Year Built: 2026
2026 Taxes: $20000.00
Buyer Broker Comp.: 2%
Listing #: 2494023
Lot Details
Lot Size: 1.38 acres
Appliances That Stay
Dishwasher
Disposal
Double Oven
Dryer
Microwave
Refrigerator
Stove(s)/Range(s)
Washer
Interior
Second Primary Bedroom
Bath Off Primary
Dining Room
Fireplace
Fireplace (Primary Bedroom)
French Doors
High Tech Cabling
Pantry
Vaulted Ceiling(s)
Walk-In Closet(s)
Water Heater
Wet Bar
Wired for Generator
Dbl Pane/Storm Window
Cooling: 90%+ High Efficiency
Heating: Heat Pump
Electric
Fireplaces: 3
Schools
District: Northshore
Elem: Sunrise Elem
Middle: Timbercrest Middle School
High: Woodinville Hs
Call or Email:
Grace Wamwere
What's Near 13 Woodinville-Redmond Road Woodinville, WA 98052?

Information is based on data available to the associate, including county records. The information has not been verified by the associate and all information presented should be verified by the buyer. Listings are provided by Northwest Multiple Listing Service as distributed by MLS GRID. The associate represented on this web site is not a multiple listing service but is a member of a local MLS.
DMCA Notice