6035 Fauntleroy Way SW #B Seattle, WA 98136
6035 Fauntleroy Way SW #B
Seattle, WA 98136
$689,000
Residential
3 Beds
2.50 Baths
1650 SqFt
Active
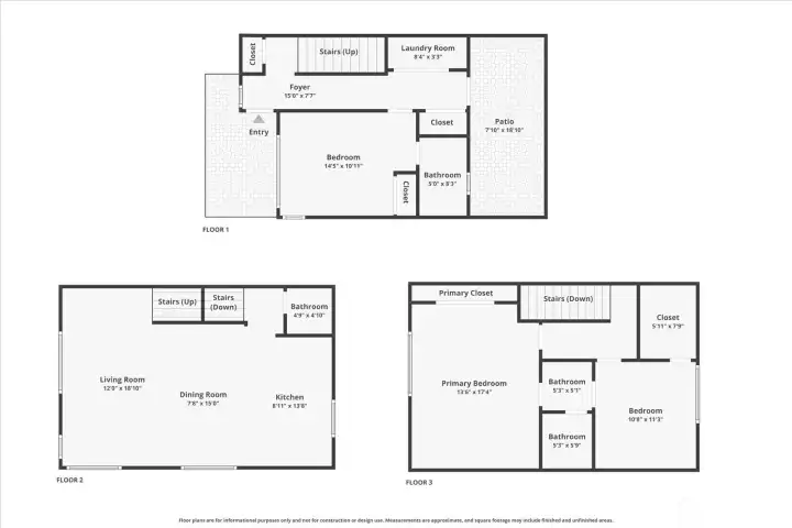
Cozy and bright West Seattle townhome, no HOA dues and move-in ready! This sunlight-filled 3-bed/2.5-bath home, built in 2005, delivers 1650 sq ft of thoughtfully designed, multi-level living. The open main level is anchored by large SW-facing windows that flood the space with natural light throughout the day. A cozy corner fireplace is perfect for Pacific Northwest evenings. The recently refreshed kitchen shines with new countertops, new tile work and new appliances, an ideal space for cooking and entertaining. Fresh interior paint throughout gives the home a clean, modern feel. Upstairs, the primary suite offers an attached bath with skylight, accompanied by a second bedroom with a well-organized walk-in closet. The lower level adds unique flexibility with a full bath and a bonus room that can be used as a third bedroom, home office, or den. Step outside to a private patio with brand new cedar fence, perfect for al fresco dining or quiet relaxation. Convenient off-street parking. Situated in a quiet community along Fauntleroy Way with walkable access to daily essentials and green spaces: Thriftway Market (.4 mi), West Seattle Junction and world famous Easy Street Records (1.2 mi), and the beloved Lincoln Park waterfront (1 mi). RapidRide C Line transit runs directly along Fauntleroy Way SW for quick, easy downtown Seattle access. Floor plans included in listing photos. This is a lovely home!
Watch Virtual Tour #1Property Features
Community: Morgan Junction
Townhouse
Fenced-Partially
Patio
Exterior: Wood
Exterior: Wood Products
Roof: Composition
Parking: Driveway
Parking: Off Street
Year Built: 2005
2025 Taxes: $5817.00
Buyer Broker Comp.: 2.5%%
Listing #: 2493138
Lot Details
Lot Size: 0.03 acres
Alley
Appliances That Stay
Dishwasher
Disposal
Dryer
Refrigerator
Stove(s)/Range(s)
Washer
Interior
Bath Off Primary
Fireplace
Skylight(s)
Vaulted Ceiling(s)
Walk-In Closet(s)
Water Heater
Dbl Pane/Storm Window
Cooling: Window Unit A/C
Heating: Baseboard
Electric
Fireplaces: 1
Open Houses
Mar 21: 11:00 AM - 1:00 PM
Mar 22: 1:30 PM - 3:30 PM
Call or Email:
Grace Wamwere
What's Near 6035 Fauntleroy Way SW #B Seattle, WA 98136?

Information is based on data available to the associate, including county records. The information has not been verified by the associate and all information presented should be verified by the buyer. Listings are provided by Northwest Multiple Listing Service as distributed by MLS GRID. The associate represented on this web site is not a multiple listing service but is a member of a local MLS.
DMCA Notice