4124 Aberdeen Way NE Renton, WA 98056

Square footage/dimensions shown are only an estimate, and actual square footage/dimensions will differ. ?Buyers should rely on his or her own evaluation of usable area. Depictions of homes or other features are artist conceptions. Hardscape, landscape, and other items shown may be decorator suggestions that are not included in the purchase price, and availability may vary. No view is promised. Views may also be altered by subsequent development, construction, and landscaping growth. ?©2025 Century Communities, Inc

LAKEVIEW TERRACE

Community Park 1

Community Park 2

Common Area

Common Area

Boardwalk & Hiking Trail

Community Trail
4124 Aberdeen Way NE
Renton, WA 98056
$1,564,900
Residential
3 Beds
2.50 Baths
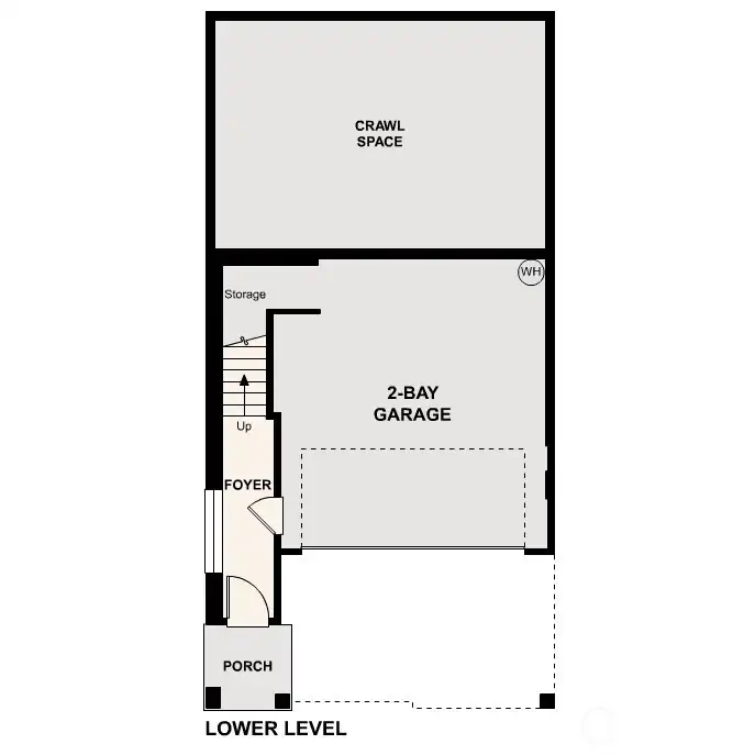
2264 SqFt
Pending
New modern construction in East Kennydale! Lakeview Terrace, an ultra modern single family community by Century Communities! Introducing our Malcom plan most desirable 3 bedroom home with 2.5 baths. This home offers 2551 sq ft, an open concept floorplan, great room, island kitchen, & deck. 3rd floor has 3 bedrooms, including primary suite with large WIC and lower level with hall bath. Fully Upgraded! Estimated for fall completion. New home warranty, energy efficient, low maintenance, updated safety & modern lifestyle design elements. Customer must register their broker. ALL PICTURES ARE OF OUR DECORATED MODEL, FOR ILLUSTRATIVE PURPOSES ONLY.
Property Features
Community: Renton
Multi Level
Sprinkler System
New Construction: Yes
Exterior: Cement Planked
Exterior: Cement/Concrete
Exterior: Wood
Roof: Composition
Parking: Attached Garage
Year Built: 2026
HOA Dues: $166
2024 Taxes: $12700.00
Buyer Broker Comp.: 2%
Listing #: 2491108
Lot Details
Lot Size: 0.05 acres
Curbs
Paved
Appliances That Stay
Dishwasher
Disposal
Microwave
Stove(s)/Range(s)
Interior
Bath Off Primary
SMART Wired
Walk-In Closet(s)
Water Heater
Dbl Pane/Storm Window
Cooling: Ductless HP-Mini Split, 90%+ High Efficiency
Heating: Heat Pump, Wall Furnace
Electric
Natural Gas
Schools
District: Renton
Elem: Hazelwood Elem
Middle: Risdon Middle School
High: Hazen Snr High
Call or Email:
Grace Wamwere
What's Near 4124 Aberdeen Way NE Renton, WA 98056?

Information is based on data available to the associate, including county records. The information has not been verified by the associate and all information presented should be verified by the buyer. Listings are provided by Northwest Multiple Listing Service as distributed by MLS GRID. The associate represented on this web site is not a multiple listing service but is a member of a local MLS.
DMCA Notice