0 Edgewater Drive SW Lakewood, WA 98499
0 Edgewater Drive SW
Lakewood, WA 98499
$210,000
Land
0 Beds
0.00 Baths
0 SqFt
Active
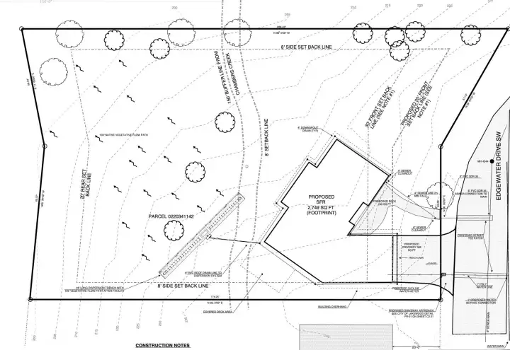
Seller financing available, offering a rare opportunity for builders or buyers looking for flexibility while completing final plans and permits. Possible terms could include 15% down, ~7% interest, and a 3–5 year balloon, helping reduce upfront capital while moving the project forward. This .48± acre vacant lot is tucked away on a quiet, dead-end street offering a private, park-like setting with potential territorial views. A major advantage: previous building plans were already approximately 90–95% through the approval process, saving substantial time and soft costs. Many key steps had previously been completed, including an approved DOE Shoreline permit, geotechnical slope letter, and preliminary sewer and water plans. Existing house plans are included and only needed finalization, giving the next owner a significant head start toward construction. Whether you move forward with the existing design or create your own custom home, this property offers the rare ability to skip much of the early feasibility work that often delays new construction projects. Enjoy easy access to Chambers Creek parks, trails, golf, and nearby commuter routes while building your dream home in a peaceful natural setting. Documents, plans, and supporting reports are available in supplements.
Property Features
Community: Lakewood
Res-Less thn 1 Ac
View: Territorial
Evergreens
Pool: Above Ground
2026 Taxes: $1696.57
Buyer Broker Comp.: 3%
Listing #: 2490775
Lot Details
Lot Size: 0.48 acres
Adjacent to Public Land
Cul-De-Sac
Dead End Street
Open Space
Paved
Topography: Sloped
Road: Paved
Utilities
Electricity: In Street
Water: Available
Water: In Street
Gas: Available
Sewer: In Street
Schools
District: Lakewood
Elem: Buyer To Verify
Middle: Buyer To Verify
High: Buyer To Verify
Call or Email:
Grace Wamwere
What's Near 0 Edgewater Drive SW Lakewood, WA 98499?

Information is based on data available to the associate, including county records. The information has not been verified by the associate and all information presented should be verified by the buyer. Listings are provided by Northwest Multiple Listing Service as distributed by MLS GRID. The associate represented on this web site is not a multiple listing service but is a member of a local MLS.
DMCA Notice